DYNA
0012-7353
2346-2183
Universidad Nacional de Colombia
https://doi.org/10.15446/dyna.v91n232.113085

Recibido: 21 de febrero de 2024; Revision Received: 30 de mayo de 2024; Aceptado: 5 de junio de 2024

Reactivation of three test benches of high, medium and low power electric generators for hydraulic energy conversion

Reactivación de tres bancos de pruebas de generadores eléctricos de alta, media y baja potencia para conversión de energía hidráulica

M. Márquez-Romance, a A. Márquez-Romance, b B. Márquez, cE. Guevara-Pérez, d S. Pérez-Pacheco, e

Centro de Investigaciones Hidrológicas y Ambientales, Universidad de Carabobo, Carabobo, Venezuela. mmarquer@uc.edu.ve Universidad de Carabobo Centro de Investigaciones Hidrológicas y Ambientales Universidad de Carabobo Carabobo Venezuela
Centro de Investigaciones Hidrológicas y Ambientales, Universidad de Carabobo, Carabobo, Venezuela. ammarquez@uc.edu.ve Universidad de Carabobo Centro de Investigaciones Hidrológicas y Ambientales Universidad de Carabobo Carabobo Venezuela
Centro de Investigaciones Hidrológicas y Ambientales, Universidad de Carabobo, Carabobo, Venezuela. bfarias@uc.edu.ve Universidad de Carabobo Centro de Investigaciones Hidrológicas y Ambientales Universidad de Carabobo Carabobo Venezuela
Centro de Investigaciones Hidrológicas y Ambientales, Universidad de Carabobo, Carabobo, Venezuela. eguevara@uc.edu.ve Universidad de Carabobo Centro de Investigaciones Hidrológicas y Ambientales Universidad de Carabobo Carabobo Venezuela
Centro de Investigaciones Hidrológicas y Ambientales, Universidad de Carabobo, Carabobo, Venezuela. sperez@uc.edu.ve Universidad de Carabobo Centro de Investigaciones Hidrológicas y Ambientales Universidad de Carabobo Carabobo Venezuela

Abstract

This paper deals with the reactivation of three test benches of high, medium and low power electric generators for hydraulic energy conversion in the University of Carabobo Hydraulic Laboratory. The method involves three stages: i) Description of three high, medium and low power electric generators for hydraulic energy conversion, ii) Rehabilitation of three high, medium and low power electric generators for hydraulic energy conversion and iii) Evaluation of performance indexes of high, medium and low power electric generators for hydraulic conversion. The results indicate that for the low power electric generator, the position angle of the distributor blades is an experimental factor that has a significant effect on the response variables studied. With respect to the medium and high power electric generators, the most influential factor on operation and power generation is the flow supplied.

Keywords:

Francis turbine, Kaplan turbine, Pelton turbine, power electric generators, turbomachinery.

Resumen

El presente trabajo trata sobre la reactivación de tres bancos de pruebas de generadores eléctricos de alta, media y baja potencia para conversión de energía hidráulica en el Laboratorio de Hidráulica de la Universidad de Carabobo. El método involucra tres etapas: i) Descripción de tres generadores eléctricos de alta, media y baja potencia para conversión de energía hidráulica, ii) Rehabilitación de generadores eléctricos de alta, media y baja potencia para conversión de energía hidráulica y iii) Evaluación de índices de desempeño de generadores eléctricos de alta, media y baja potencia para conversión de energía hidráulica. Los resultados indican que para el generador eléctrico de baja potencia, el ángulo de posición de las palas del distribuidor es el factor experimental que tiene un efecto significativo en las variables de respuesta estudiadas. Con respecto a los generadores eléctricos de media y alta potencia, el factor que más influye en el funcionamiento y generación de energía es el caudal suministrado.

Palabras clave:

Turbina Kaplan, turbina Pelton, turbina Francis, generadores eléctricos de potencia, turbomaquinaria.

1. Introduction

In Venezuela, where the main source of electrical energy is of water origin, representing approximately 60% of the country's total production [1], it is essential to educate the population regarding the generation and saving this resource and implementing plans for the use of any alternative source that contributes preserve the environment and life on the planet ?αμπ;#091;2?αμπ;#093;.

Venezuela is constitutionally and internationally committed to developing technologies that work with clean or renewable energy. For this reason, the State at the energy level has set the following goals: Raise awareness of the rational and efficient use of electricity; improve the distribution, maintenance and generation of the national electricity system; complete the hydroelectric plants already started; working on new low, medium and high generation electrical projects, as well as investing in educational programs, research, modernization of laboratories, among others ?αμπ;#091;2?αμπ;#093;.

In the Elías Sánchez Díaz hydraulics laboratory, of the School of Civil Engineering of the University of Carabobo, there are three (3) turbine benches that were inoperative for more than 40 years, due to lack of economic resources for their maintenance. The reactivation of these turbine banks corresponded to the project N° 2014000418 supported by the National Fund for Science, Innovation and Technology attached to the Ministry of Popular Power for Science and Technology, through which students attached to the Center for Hydrological and Environmental Research of the University of Carabobo (CIHAM-UC, by its acronym in Spanish) and belonging to the Schools of Mechanical, Electrical and Civil Engineering of the University of Carabobo developed special works to obtain the academic degree and contribute to the reactivation of the benches of low, medium and high power electric generators for conversion of hydraulic energy in the Hydraulic Laboratory of the University of Carabobo., managing to fulfill the purpose satisfactorily ?αμπ;#091;3?αμπ;#093;.

This investigation has as objectives: i) Description of three high, medium and low power electric generators for hydraulic energy conversion, ii) Rehabilitation of three high, medium and low power electric generators for hydraulic energy conversion and iii) Evaluation of performance indexes of high, medium and low power electric generators for hydraulic conversion.

2. Materials and methods

2.1. Description of low power electric generator bench for hydraulic energy conversion

In the schematic diagram shown in Fig. 1, the water required for the operation of the low power electric generator bench (Kaplan turbine), is supplied through line L1 and is controlled by valve (V1), both are located in the top of the flow stabilization tower (FST). The flow stabilization tower contains a flow vertical line (Ld), which is open to the atmosphere and is used to release air masses trapped in the ductwork during filling and testing on the Kaplan turbine bench.

Schematic diagram of the low power electric generator test bench (Kaplan turbine) at the Hydraulic Laboratory of the University of Carabobo.

Figure 1: Schematic diagram of the low power electric generator test bench (Kaplan turbine) at the Hydraulic Laboratory of the University of Carabobo.

Source: Own elaboration. Adapted from [4].

2.2. Description of medium power electric generator bench for hydraulic energy conversion

The test bench of the medium power electric generator (Francis Turbine) is provided with a common water recirculation system with that of the high-power electric generator (Fig. 2). For the execution of the different tests on the Francis turbine, valves V1 and V3 must be kept open, while valves V2 and V4 must be kept closed. The Francis turbine has a built-in motor-generator (G), being controlled from a control panel, in which the voltage and current consumed or produced during the test can be observed. Pump B transfers the energy to the water (Fig. 2), making it flow to the pipeline system or network through lines L1, L2, L3, and L4. The water acquires a suitable pressure and height to carry out the different tests on the turbines. The pump is fed by tank T1, which must be 80% full before starting the pump. The main ten components that make up the Francis turbine are shown in Fig. 3, which involve ?αμπ;#091;4?αμπ;#093;: 1) spiral chamber, 2) turbine suction tube, 3) turbine inlet tube, 4) torsion gauge, 5) motor-generator, 6) governor transmission box, 7) tachometer, 8) hydraulic governor, 9) Fink type distributor and 10) electrical connection.

Schematic diagram of the test benches of the high (Pelton turbine) and medium (Francis turbine) power electric generators at the Hydraulic Laboratory of the University of Carabobo.

Figure 2: Schematic diagram of the test benches of the high (Pelton turbine) and medium (Francis turbine) power electric generators at the Hydraulic Laboratory of the University of Carabobo.

Source: Own elaboration. Adapted from ?αμπ;#091;4?αμπ;#093;.

Francis turbine components in the test bench.

Figure 3: Francis turbine components in the test bench.

Source: Own elaboration. Adapted from ?αμπ;#091;4?αμπ;#093;.

2.3. Description of high-power electric generator bench for hydraulic energy conversion

Fig. 4 shows the Pelton turbine components that directly intervene in the transformation of hydraulic energy into mechanical energy, including the following ?αμπ;#091;4?αμπ;#093;: 1) Impeller or Wheel, 2) Casing, 3) Lance, 4) Mouthpiece, among others.

Pelton Gilkes 5961 turbine components from the test bench of the University of Carabobo (UC) Hydraulic Laboratory.

Figure 4: Pelton Gilkes 5961 turbine components from the test bench of the University of Carabobo (UC) Hydraulic Laboratory.

Source: Own elaboration. Adapted from ?αμπ;#091;4?αμπ;#093;

2.4. Rehabilitation of three high, medium and low power electric generators for hydraulic energy conversion

The rehabilitation stages involved to carry out restoration and improvement actions of four systems are ?αμπ;#091;4?αμπ;#093;: 1) electric power supply system for turbine benches, 2) water supply system for turbine benches, 3) Kaplan turbine test bench and 4) Pelton and Francis turbine test benches.

Electric power supply system for three turbine benches

Rehabilitation of electric power supply system for turbine benches involved the following actions: 1) Installation of a new NAB 412 board to embed three-phase 100 A breakers. The purpose of the new panel located within the laboratory area is to allow the turbine benches to be deactivated rapidly and safely in the event of a failure. 2) Installation of a circuit of ten (10) single-phase outlets for use in supplying the electronic instrumentation for monitoring and control foreseen in the practices in the turbine banks. This circuit was connected to the main board of the laboratory

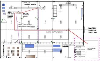
Water supply system for three turbine benches

The water supply system for the benches of Pelton and Francis turbines required the installation of a plastic pipe complement of diameter 2” for feeding the benches (Fig. 5). With regard to the Kaplan turbine test bench, the complement that is installed towards the Kaplan turbine bench must be connected at the top of the stabilizer tower, which is where the inlet to the pipeline of this test bench is located (Fig. 8).

Water supply system for the turbine benches of the University of Carabobo (UC) Hydraulic Laboratory.

Figure 5: Water supply system for the turbine benches of the University of Carabobo (UC) Hydraulic Laboratory.

Source: Own elaboration. Adapted from ?αμπ;#091;4?αμπ;#093;

2.4.1 Rehabilitation of low power electric generator bench for hydraulic energy conversion involved the following maintenances ?αμπ;#091;4-5?αμπ;#093;:

Maintenance and electrical tests in the control panel and motor unit of the turbine bench.

  1. Mechanical maintenance of the pumping unit (axial pump), based on the following three aspects: presence of sulfation of connections of iron inside the pump, binding of pump shaft and propeller and unleveling of the motor-pump shaft.

  2. General maintenance of the bank ductwork, supported in three observations made in the diagnostic stage: hardened and cracked connection gaskets and presence of hydraulic leaks in the joints.

  3. Kaplan turbine mechanical maintenance, which involves to correct the following actions: turbine shaft, distributor, connecting rod and crank binding, presence of iron sulfate inside the turbine, and absence of components or parts of the turbine.

  4. Replacement and incorporation of control and measurement instruments: pressure gauges, hoses, valves and other components in the Kaplan turbine bench. The following needs were detected in the diagnostic stage: absence of dynamometer, wire, hoses and valves, need to install pressure gauges on the orifice plate and requirements for a sight glass on the flow stabilization tower.

  5. Maintenance of the orifice plate, taps, valve and placement of the piezometric bench, it was found disconnection of the water-air piezometric bank from the ductwork that presents the orifice plate, and occlusion of connections for pressure measurement and valves.

  6. Placement of water supply and drain control pipes and valves in the bank. This maintenance is required due to the water supply and drain pipe to the bank has been dismantled.

  7. Installation of sight glass in the stabilization tower: it was found that the water level inside the stabilizer cannot be observed.

  8. Establishment of the pressure range of the manometers and vacuum meters that will be used in the bench, the existing pressure gauge on the bench has a range (0-160 psi), which is not adequate to what is expected at the turbine output (-5 to 5 psi) and the pressure gauges and vacuum gauges are required on the pump and turbine.

2.4.2. Rehabilitation of medium power electric generator bench for hydraulic energy conversion.

The test bench is divided into four subsystems involving ?αμπ;#091;4,6-7?αμπ;#093;:

  1. Water storage subsystem: The tank walls were found to be corroded due to exposure to the environment without any protection. Corroded material and paint removal is required on all walls with two coats of anticorrosive and one coat of enamel paint. In addition, the water level meter showed occlusion of the viewing tube due to sediment remaining in the system.

  2. Flow distribution subsystem: Four gate valves were found to be clogged in the gate stroke due to corrosion inside the valve, creating an inability to regulate flow, requiring internal cleaning and external anti-corrosion and enamel coating.

The centrifugal water distribution pump presented high electricity consumption, melted supply cables to the pump, and a defective breaker, due to a possible short circuit, requiring replacement by a centrifugal pump with similar working conditions, replacement of the cables with new ones and greater caliber and replacement of the breaker with a new one of 30 A per line.

The manifold presented fracture in one of the union supports due to deterioration of the PVC part because of the exhaustion of its useful life and time in disuse, causing water leaks in the fitting, requiring its replacement of connections.

The mercury piezometer presented malfunction of the selector valves due to corrosion and deterioration caused by disuse, making it impossible to select between one or the other orifice plate, requiring the replacement of the system by a simple valve arrangement. As well as, malfunction at the time of the flow measurement, due to a low level of mercury in the reservoir, obtaining erroneous flow readings, requiring replacement of the mercury.

Orifice plates showed an absence of hoses, spigot connectors and clamps, making it impossible to connect the plates with the piezometer, requiring new hoses, spigot connections and clamps.

  1. Francis turbine subsystem, a fractured stationary mechanical seal was found causing malfunction and handling that caused water to leak between the motor-generator and the turbine, requiring the manufacture of the mechanical seal with the original sample. The mechanical seals were embedded in the mating surface of the rotary mechanical seal due to time in disuse and exposure to the environment, creating water leaks between the motor-generator and the turbine, requiring lapping of the mating surface.

There was friction between the impeller and the volute case wear ring due to deformation of the impeller and wear ring surfaces, requiring machining of both parts on a lathe.

The dynamometer did not function due to the deterioration of the mercury reservoir seal, which made it impossible to read the braking force of the Francis turbine, requiring the manufacture of the seal.

Generator presented malfunction due to time in disuse and exposure to the environment, causing an impossibility of generating electrical energy which could lead to other failures, in addition to preventing the measurement of the force to the turbine brake, requiring replacement of the output wiring of the generator with direct connection to voltmeter and ammeter.

A faulty breaker was found in the control panel, due to a possible short circuit, causing the impossibility of energizing the control panel and resistance bench, requiring its replacement.

The control panel showed a defective motor-generator selector cylinder, requiring a new key manufacture.

The control panel had a faulty voltmeter and ammeter, making it impossible to read the voltage and current generated, requiring replacement with new devices.

  1. Pelton turbine subsystem, this subsystem is part of the same test bench, sharing the subsystems of water storage and flow distribution and will be described in the next subsection.

2.4.3. Rehabilitation of high-power electric generator bench for hydraulic energy conversion.

Rehabilitation of high-power electric generator bench for hydraulic energy conversion consisted in the maintenance of three components involving ?αμπ;#091;6-7?αμπ;#093;:

  1. Rear bearing presented noise when rotating due to metal-metal friction, finding a rear bearing in poor condition that caused the staggered rotation of the turbine, requiring the replacement of the bearing with a new one.

  2. Pressure gauge presented a malfunction that caused damage to the internal components due to the inability to measure the pressure at the turbine inlet, requiring replacement with a new pressure gauge.

  3. Dynamometer, there was no dynamometer, which made it impossible to measure the braking force of the turbine, requiring the installation of a new dynamometer (clock-type scale 0-200 kgf).

2.5. Evaluation of performance indexes of high, medium and low power electric generators for hydraulic conversion

2.5.1. Evaluation of performance indexes of low power electric generator bench for hydraulic energy conversion

The experimental test design for the Kaplan Turbine system is a multilevel factorial design where there are three experimental factors and five response variables (Table 1). The experimental factors (Table 1) are comprised of the opening angle of the distributor blades which is defined by nine levels which are 1 in, 1 1/8 in, 1 1/4 in, 1 3/8 in, 1 1/2 in, 1 5/8 in, 1 3/4 in, 1 7/8 in, 2 in; the position angle of the impeller blades which has nine levels that are -5 °, 0 °, 5 °, 10 °, 15 °, 20 °, 25 °, 30 °, 35 ° and the rotation speed of the axis of the Kaplan turbine featuring six levels of studies which are 200 rpm, 400 rpm, 600 rpm, 800 rpm, 1000 rpm and 1200 rpm. For a total of combinations in the factors equal to 9 𝑥 9 𝑥 6 = 486 tests.

Table 1: Experimental factors of the design of experimental tests in the Kaplan turbine from the test bench of the University of Carabobo (UC) Hydraulic Laboratory.

Experimental factors Number of Levels Levels Unit
Position angle of the distributor blades (X) 9 1, 1 1/8, 1 1/4, 1 3/8, 1 1/2, 1 5/8, 1 3/4, 1 7/8, 2 in
Angle of impeller blade position (ϕ) 9 -5, 0, 5, 10, 15, 20, 25, 30, 35 °
Rotation speed of the Kaplan turbine shaft (N) 6 200, 400, 600, 800, 1000, 1200 rpm

Source: Adapted from ?αμπ;#091;2?αμπ;#093;.

2.5.2. Evaluation of performance indexes of medium power electric generator bench for hydraulic energy conversion

The design of the experimental tests of the Francis turbine system is shown in Table 2; where two (2) experimental factors are observed ?αμπ;#091;7?αμπ;#093;: 1) Inlet flow (m3/h) and 2) Distributor opening. For a total of combinations in the factors equal to 10 𝑥 2 = 20 tests.

Table 2: Experimental factors of the design of experimental tests in the Francis turbine from the test bench of the University of Carabobo (UC) Hydraulic Laboratory.

Number of Levels Levels Unit
10 11,36; 17,03; 22,71; 28,39; 34,07; 39,74; 45,42; 51,10; 56,78; 62,45; (50, 75, 100, 125, 150, 175, 200, 225, 250, 275) [m3/h], (gpm)
2 50%, 100%

Source: Adapted from [7].

2.5.3. Evaluation of performance indexes of high-power electric generator bench for hydraulic energy conversion

The design of the experimental tests of the Pelton Turbine System is shown in Table 3; where three (3) experimental factors are observed ?αμπ;#091;7?αμπ;#093;: 1) Inlet Flow (m3 / h), 2) Punch Travel and 3) Rotation Speed (rpm). The first is tested on four levels. The second is tested on five levels. The third is tested on nine levels respectively. For a total of combinations in the factors equal to 4 𝑥 5 𝑥 9 = 180 tests

Table 3: Experimental factors of the design of experimental tests in the Pelton turbine from the test bench of the University of Carabobo (UC) Hydraulic Laboratory.

Experimental factors Number of Levels Levels Unit
Inlet flow 4 11,36; 22,71; 34,07; 45,42; (50, 100, 150, 200) [m3/h] (gpm)
Punch Travel 5 0.2, 0.4, 0.6, 0.8, 1
Rotation speed of the Pelton turbine shaft (N) 9 400, 500, 600, 700, 800, 900, 1000, 1100, 1200 (rpm)

Source: Adapted from ?αμπ;#091;7 ?αμπ;#093;

2.5.4. Elaboration of the operating curves for the representation of the variables involved in the Kaplan Turbine, Francis Turbine and Pelton Turbine systems of the UC-Hydraulic Laboratory

For the elaboration of the characteristic curves of the operation of the Kaplan turbine, Francis turbine and Pelton turbine systems of the UC-Hydraulic Laboratory ?αμπ;#091;7?αμπ;#093;, the data obtained from the experimental tests were processed; which implied estimating the response variables that represent the operation of a hydraulic machine, such as: a) Generated power, b) Efficiency, c) Net available head, among others. Each of these response variables were plotted with respect to the experimental factors controlled or set during the tests, such as: Kaplan and Francis turbines: a) the distributor opening, and b) flow through the turbine. Pelton turbine: a) rotation speed, b) punch stroke and c) flow through the turbine. In this way, a trend curve for the operation of turbine systems is obtained for each combination of these factors.

3. Results and discussion

3.1. Operating curves to represent the variables involved in the Kaplan turbine system of the UC-Hydraulic Laboratory

The operating curves of the Kaplan Turbine where the output variables of the system are shown in Fig 6, being obtained by applying the design of the experimental tests.

Kaplan turbine characteristic curve for impeller blade position angles of a) -5º, b) 0 ° and c) 5 ° from the test bench of the University of Carabobo (UC) Hydraulic Laboratory.

Figure 6: Kaplan turbine characteristic curve for impeller blade position angles of a) -5º, b) 0 ° and c) 5 ° from the test bench of the University of Carabobo (UC) Hydraulic Laboratory.

Source: Adapted from ?αμπ;#091;5?αμπ;#093;.

Figs. 6-8 represent the characteristic curves of the Kaplan turbine for opening angles of the impeller blades of -5º (Fig. 6) and 25º (Fig. 8). It can be seen that the curves have efficiencies of up to 65%. At opening angles of the impeller blades of 25º (Fig. 8), the system works more efficiently than with an opening of -5º to lower degrees of distributor opening. For instance, for a blade opening angle of -5º (Fig. 6), the performance hills for rotational speeds below 1200 rpm reach a distributor angle of 2 in, being significantly different from a 25º opening (Fig. 8) at the same rotational speed of the turbine shaft, where efficiencies are lower for a 1 1/2 in. distributor opening.

Kaplan turbine characteristic curve for impeller blade position angles of d) 10º, e) 15° and f) 20° from the test bench of the University of Carabobo (UC) Hydraulic Laboratory.

Figure 7: Kaplan turbine characteristic curve for impeller blade position angles of d) 10º, e) 15° and f) 20° from the test bench of the University of Carabobo (UC) Hydraulic Laboratory.

Source: Adapted from ?αμπ;#091;5?αμπ;#093;

Kaplan turbine characteristic curve for impeller blade position angles of g) 25.º, h) 30° and i) 35° from the test bench of the University of Carabobo (UC) Hydraulic Laboratory.

Figure 8: Kaplan turbine characteristic curve for impeller blade position angles of g) 25.º, h) 30° and i) 35° from the test bench of the University of Carabobo (UC) Hydraulic Laboratory.

Source: Adapted from ?αμπ;#091;5?αμπ;#093;.

In Fig. 8h, which represents the curves at an angle of 0º (Fig. 6) for opening of the impeller blades, hills were obtained up to 95% of efficiency associated to 1200 rpm. The efficiencies vary between distributor opening angles of 1 3/4 in and 1 1/4 in, in which flow rates between 900 gpm and 1300 gpm are fed instead for a 30º impeller angle (Fig. 8h), reaching performances up to 95% at rotation speed of 1200 rpm and lower where it is appreciated that the performance hills are between 2 in and 1 1/2 in and these efficiencies are obtained for flow rates varying between 1250 gpm and 1600 gpm. Graphically, it is observed that for lower angles of the distributor at 0º, the system is more efficient than with an angle of 30º for opening of the impeller blades.

The curves with opening angles of the impeller of 10º (Fig. 7), 15º (Fig. 7e) and 20º (Fig. 7f) have efficiency hills of up to 80%, the curves at 10º and 15º (Fig.7) have very similar hills, however the difference is more notable for the curve of 80% performance since it could be observed that at lower flow rates of 1200 gpm at 15º (Fig. 7) this performance is not obtained, instead at 10º it varies between 1300 gpm and 1100 gpm being able to observe graphically how the curve closes due to that the values at this performance do not reach the line with a 2 in manifold angle opening. It should be noted that at higher turning speeds and lower distributor opening the system with an opening of 20º is more efficient than with openings of 10º and 15º (Fig. 7).

When analyzing the curves at 5º opening of the impeller (Fig. 6c), it is observed that the performance hills start and end at an distributor opening of 2 in, unlike the curves at 35º (Fig. 8i) where all the performance hills were evaluated at a rotation speed of 1200 rpm, it is graphically observed that they do not reach 1 3/4 in. This is why it is concluded that at 35º (Fig. 8) the system behaves more efficiently than with an opening of 5º (Fig. 6).

3.2. Operating curves to represent the variables involved in the Francis turbine system of the UC-Hydraulic Laboratory

The results of the operation of the Francis turbine system of the UC-Hydraulic Laboratory are described through the following four variables ?αμπ;#091;7?αμπ;#093;: 1) Generated Electric Power, 2) Net head delivered by the fluid to the turbine, 3) Rotation speed, and 4) Efficiency of the turbine. These variables are studied with respect to the experimental factors controlled during the tests carried out on the turbine, which are the inlet flow rate and the opening of the inlet distributor.

Flow rate against rotation speed of the Francis turbine system of the UC-Hydraulic Laboratory.

Fig. 9a shows the increase in the speed of rotation with increasing the input flow to the turbine, two curves are shown in the same graph, and each one corresponds to an opening value of the input distributor. The increase in the rotation speed is generated because the higher the input flow, the greater the energy that is provided to the turbine and this converts it into motive energy.

a) Flow against rotational speed curves obtained in Francis turbine test bench. Hydraulic Laboratory - University of Carabobo, b) Flow rate against net head obtained in Francis turbine test bench. Hydraulic Laboratory - University of Carabobo, c) Flow rate against electric power obtained in Francis turbine test bench. Hydraulic Laboratory - University of Carabobo, d) Flow rate against efficiency obtained in Francis turbine test bench. Hydraulic Laboratory - University of Carabobo.

Figure 9: a) Flow against rotational speed curves obtained in Francis turbine test bench. Hydraulic Laboratory - University of Carabobo, b) Flow rate against net head obtained in Francis turbine test bench. Hydraulic Laboratory - University of Carabobo, c) Flow rate against electric power obtained in Francis turbine test bench. Hydraulic Laboratory - University of Carabobo, d) Flow rate against efficiency obtained in Francis turbine test bench. Hydraulic Laboratory - University of Carabobo.

Source: Adapted from ?αμπ;#091;7?αμπ;#093;

Flow rate against net head of the Francis turbine system of the UC-Hydraulic Laboratory.

Fig. 9b shows the variation of the net charge supplied to the turbine depending on the inlet flow and the position of the turbine distributor. It can be seen that the higher the flow rates, the greater the net load that is generated due to the fact that having a greater volume of fluid circulating through the same area increases the inlet pressures and the fluid velocities. In addition, it can also be seen that for a smaller opening of the distributor, a greater load can be obtained because the inlet is restricted, which causes an increase in the speed and inlet pressure of the fluid.

Flow rate against electrical power generated by the Francis turbine system of the UC-Hydraulic Laboratory.

In Fig. 6c, it can see the increase in electrical power with respect to the flow, this occurs since, as mentioned before, the higher the input flow, the greater the net load is delivered to the turbine, which produces an increase in useful power that the turbine can generate. In the case of the Francis turbine system of the UC-Hydraulic Laboratory, this useful power is directly translated into electrical power thanks to the generator and the electrical panel that it has attached to it.

Flow rate against efficiency obtained from Francis turbine system of the UC-Hydraulic Laboratory

Fig. 9d shows the efficiency with respect to the inlet flow of the Francis turbine system of the test bench of the UC-Hydraulic Laboratory. The graph shows that for higher inlet flows the turbine efficiency tends to increase.

3.3. Operating curves to represent the variables involved in the Pelton turbine system of the UC-Hydraulic Laboratory

The variables that describe the operation of the Pelton turbine system of the UC-Hydraulic Laboratory are ?αμπ;#091;7?αμπ;#093;: the generated brake power, the net load delivered by the fluid to the turbine and the efficiency obtained from the turbine. Each of these factors is studied with respect to the variables that can be controlled during the test, such as the stroke of the punch, the speed of rotation of the turbine and the input flow to the turbine.

  • Flow rate against rotation speed of the Pelton turbine system of the UC-Hydraulic Laboratory

In Fig. 10a, the variation of the rotation speed with respect to the increase in the input flow to the turbine can be observed. This is congruent with the theoretical operation of a turbine which indicates, as it has been studied before, that the higher the inlet flow and the head of the water, the more energy is delivered to the turbine, which is transformed into mechanical energy in the form of angular velocity in the shaft coupled to the turbine rotor.

a) Flow rate against rotation speed of the Pelton turbine system of the UC-Hydraulic Laboratory, b) Flow rate against net head curve of the Pelton turbine system of the UC-Hydraulic Laboratory, c) Rotation speed against brake power under a flow rate of 200 gpm, d) Rotation speed against brake power under a flow rate of 150 gpm, e) Rotation speed against brake power under a flow rate of 100 gpm, f) Rotation speed against brake power under a flow rate of 50 gpm.

Figure 10: a) Flow rate against rotation speed of the Pelton turbine system of the UC-Hydraulic Laboratory, b) Flow rate against net head curve of the Pelton turbine system of the UC-Hydraulic Laboratory, c) Rotation speed against brake power under a flow rate of 200 gpm, d) Rotation speed against brake power under a flow rate of 150 gpm, e) Rotation speed against brake power under a flow rate of 100 gpm, f) Rotation speed against brake power under a flow rate of 50 gpm.

Source: Adapted from ?αμπ;#091;6-7?αμπ;#093;

  • Flow rate against net head curve of the Pelton turbine system of the UC-Hydraulic Laboratory.

Fig. 10b shows how the net head available for the action of the turbine increases depending on the increase in the input flow of the turbine. Likewise, it can be observed that for longer strokes of the punch it is possible to obtain data at higher flow rates, which results in curves with less steep slopes. This graph is made only with the data of the tests in which there is a turning speed of 400 rpm, because this is the speed at which for each combination of the different levels of flow and punch stroke it is possible to obtain enough net load points to generate a curve.

  • Rotation speed against brake power curves of the Pelton turbine system of the UC-Hydraulic Laboratory.

In Fig. 10c-10f, it can be seen how the power on the Pelton turbine shaft varies depending on the speed of its rotation, likewise the powers obtained and the amount of data collected depending on the flow that is supplied can be compared to the turbine, it is evident that for a higher flow there is the possibility of turning the turbine at higher revolutions and applying a greater brake force on the shaft, this translates into greater power on the turbine shaft even for longer punch strokes those that can be placed at lower flow rates.

  • Rotation speed against efficiency of the Pelton turbine system of the UC-Hydraulic Laboratory.

In Fig. 11g-11i, the curves are presented in which it can be observed how the efficiency varies according to the rotation speed of the turbine depending on the different inlet injector openings and the different inlet flow rates with which they were taken the data of the experiment. It is important to note that just as for higher flows a greater brake power is obtained, the efficiency also tends to increase with the increase of the flow that circulates through the turbine.

g) Rotation speed against efficiency under a flow rate of 200 gpm, h) Rotation speed against efficiency under a flow rate of 150 gpm, i) Rotation speed against efficiency under a flow rate of 100 gpm, j) Rotation speed against efficiency under a flow rate of 50 gpm.

Figure 11: g) Rotation speed against efficiency under a flow rate of 200 gpm, h) Rotation speed against efficiency under a flow rate of 150 gpm, i) Rotation speed against efficiency under a flow rate of 100 gpm, j) Rotation speed against efficiency under a flow rate of 50 gpm.

Source: Adapted from ?αμπ;#091;6-7?αμπ;#093;

4. Discussion

Kaplan turbine test bench in the current study gave operating results similar to the Kaplan turbine test bench used to implement laboratory test in the “Escuela Superior Politécnica de Chimborazo”, Ecuador. In the Kaplan turbine bench operated under the following conditions: rotation speed varied between 405 and 1680 rpm, net head between 1.37 x 10-3 and 3.05 x 10-2 mwh (meters of water head), flow rate between 1759.39 to 1866.22 gpm, and generated power between 1.34 and 1.45 KW and total efficiencies between 8 and 15 % ?αμπ;#091;8?αμπ;#093;.

From the current experience to reactivate three hydraulic turbine test benches, prospective studies were produced to project micro hydroelectric generation plants advised by CIHAM-UC. The purpose of the studies was to analyze the hydroelectric potential of Pao Cachinche (PC-WR) (Carabobo-Cojedes States) ?αμπ;#091;9?αμπ;#093;, Pao Las Balsas (PLB-WR) (Cojedes State) ?αμπ;#091;10?αμπ;#093;, Dos Cerritos (DC-WR) (Lara State) ?αμπ;#091;11?αμπ;#093;, and El Pueblito (EP-WR) (Guárico State) water reservoirs ?αμπ;#091;12?αμπ;#093; used for supplying uses for human consumption and agricultural development. The descriptive statistical analysis carried out on the water elevation variable showed that the PC-WR, PLB-WR and EP-WR did not reach critical water levels during the period 2005-2015. DC-WR presented steady values during the period 1988-2013; where the variables associated to area and volume had a decrease in recent years, without compromising the operating levels of the reservoir. Through the study carried out, it was determined that the design flow would be approximately 1 m3/s according to the criteria used for its selection, taking ecological expenditure as a reference. The design power varied between 73.39 KW and 73.88 KW respectively, corresponding to the selection range of the Francis turbine.

5. Conclusions

The determination of the operating characteristics of the Kaplan turbine allowed us to know which are the parameters that influence the behavior of this type of turbine and establish the ranges in which each parameter operates in the Kaplan Turbine system belonging to the “Elías Sánchez Díaz” from the School of Civil Engineering of the University of Carabobo. The multilevel factorial design was used in the design of experimental tests for the Kaplan turbine system, managing to study the different levels that each experimental factor has through all possible combinations of the levels of each factor; by making use of this design, it was possible to obtain the influence of each factor on the response variables, determining that the position angle of the distributor blades as an experimental factor has a greater effect on the response variables studied.

The results of the design of the experimental tests have made it possible to know the conditions that influence the operation of each turbine and establish the regulation ranges of each parameter in the Francis turbine and Pelton turbine systems belonging to the “Elías Sánchez Díaz” hydraulic laboratory of the University of Carabobo. The factorial design has led to 7 experimental tests on the Francis Turbine System and 65 experimental tests on the Pelton turbine system. In both turbines, the most influential factor on operation and power generation is the flow supplied; which varies in the first system varies between 100 and 275 gpm; in the second system between 50 and 250 gpm.

Experiences to the laboratory scale about the reactivation of three test benches of hydraulic generators will be useful to develop projects on micro hydroelectric generation plants. The feasibility of projects on micro-plants for hydraulic energy conversion has been analyzed by CIHAM-UC using the framework of the water reservoirs /WR) for human consumption located in the northern region of the Bolivarian Republic of Venezuela, evaluating their hydroelectric potential. The water reservoirs included to Pao Cachinche (PC-WR) (Carabobo-Cojedes States), Pao Las Balsas (PLB-WR) (Cojedes State), Dos Cerritos (DC-WR) (Lara State) and El Pueblito (EP-WR) (Guárico State) water reservoirs used for supplying uses for human consumption and agricultural development. Based on this analysis, it was determined that the design flow would be approximately 1 m3/s according to the criteria used for its selection, taking ecological flow rate as a reference. The design power varied between 73.39 KW and 73.88 KW respectively, corresponding to the selection range of the Francis turbine.

Acknowledgements

Acknowledgements

This research was funded by the National Fund for Science, Technology and Innovation, belonging to the Ministry of Popular Power for Science and Technology, Venezuela.

References

  1. [1] Ministerio del Poder Popular para la Energía Eléctrica (MPPEE). MPPEE homologa metodología de cálculos de indicadores para mitigar los efectos del cambio climático. Prensa. [en línea]. 2024. Disponible en: http://mppee.gob.ve/?p=87464 [URL] 🠔
  2. [2] Observatorio Regional de Planificación para el Desarrollo de América latina y el Caribe. Plan de la Patria 2109-2025 de Venezuela. [en línea]. 2024. Disponible en: https://observatorioplanificacion.cepal.org/es/planes/plan-de-la-patria-2019-2025-de-venezuela [URL] 🠔
  3. [3] Márquez, A., Final Technical Report. Project No. 2014000418: Reactivation of three test benches for high, medium and low power electric generators for the conversion of hydraulic energy, Elías Sánchez Díaz Hydraulic Laboratory, University of Carabobo, Venezuela. [en línea]. 2018. Disponible en: http://riuc.bc.uc.edu.ve/handle/123456789/8453 [URL] 🠔
  4. [4] Márquez, A.M., and Salazar-Reyes, I.A., Proposal for the reactivation of the Kaplan, Pelton and Francis turbine banks in the "Elías Sánchez Díaz" Hydraulics Laboratory, Bachelor’s thesis. School of Civil Engineering, University of Carabobo, Venezuela, [online]. 2016. Available at: https://riuc.bc.uc.edu.ve/handle/123456789/8438 [URL] 🠔
  5. [5] Márquez, A.M, García, J., and Pacheco, M., Evaluation of the operation of the Kaplan turbine system in the “Elías Sánchez Díaz” Hydraulics Laboratory, Bachelor’s thesis. School of Civil Engineering, University of Carabobo, Venezuela, [online]. 2015. Available at: https://riuc.bc.uc.edu.ve/handle/123456789/8441 [URL] 🠔
  6. [6] Márquez, A.M., Martínez, I., and Uzcátegui, J., Rehabilitation of the Francis-Pelton turbine system of the Hydraulics Laboratory, Bachelor’s thesis. School of Civil Engineering, University of Carabobo, Venezuela, [online]. 2016. Available at: https://riuc.bc.uc.edu.ve/handle/123456789/8437 [URL] 🠔
  7. [7] Márquez, A.M, and Cachinca, J., Evaluation of the operation of the Francis turbine and Pelton turbine systems of the Hydraulics Laboratory, Bachelor’s thesis. School of Civil Engineering, University of Carabobo, Venezuela, [online]. 2016. Available at: https://riuc.bc.uc.edu.ve/handle/123456789/8440. [URL] 🠔
  8. [8] López-García, C.G., and Puma-Riofrío, J.I., Repowering of the Kaplan axial flow turbine test bench of the Hydraulic Turbomachinery Laboratory of the Faculty of Mechanics. Undergraduate thesis. “Escuela Superior Politécnica de Chimborazo”, Ecuador, 2022. 🠔
  9. [9] Márquez, A., Guevara-Rodríguez, O.J., and Linares-Sepúlveda, J.A., Analysis of the hydroenergetic capacity of the Pao Cachinche reservoir. Bachelor’s thesis. School of Civil Engineering, University of Carabobo, Venezuela, [online]. 2016. Available at: http://riuc.bc.uc.edu.ve/handle/123456789/8445 [URL] 🠔
  10. [10] Márquez, A., González, N., and Hoyle, M., Analysis of the hydroenergetic capacity of the Pao la balsa reservoir, Cojedes state. Bachelor’s thesis. School of Civil Engineering, University of Carabobo, Venezuela, [online]. 2016. Available at: http://riuc.bc.uc.edu.ve/handle.net/123456789/8444 [URL] 🠔
  11. [11] Márquez, A., Rebolledo, M., and González, C., Analysis of the hydroenergy capacity of the reservoirs of the Lara State. Bachelor’s thesis. School of Civil Engineering, University of Carabobo, Venezuela, 2016. 🠔
  12. [12] Márquez, A., Anderi-Matos, A.R., and Caspe-Moyeja, A.E., Analysis of the hydroenergetic capacity in the reservoirs of the Unare River basin located between the Guárico and Anzoátegui states. Bachelor’s thesis. School of Civil Engineering, University of Carabobo, Venezuela, [online]. 2016. Available at: http://www.riuc.bc.uc.edu.ve/handle/123456789/7118 [URL] 🠔
Márquez-Romance, M.H., Márquez-Romance, A.M., Farías -De Márquez, B., Guevara-Pérez, E. and Pérez-Pacheco, S.A., Reactivation of three test benches of high, medium and low power electric generators for hydraulic energy conversion. DYNA, 91(232), pp. 139-148, April - June, 2024.
The data that supports the findings of this study are available in the institutional repository of the University of Carabobo through of the following approved bachelor theses: ?αμπ;#091;4-8,10-12?αμπ;#093;.
was born in Venezuela, in 1977. She is BSc. Eng. in Electrical Engineering in 2000 from the UC. MSc. in Instrumentation in 2005, from the Central University of Venezuela. She is PhD student in Instrumentation at Central University of Venezuela. Since 2003, she is professor in School of Basic Studies at UC Engineering Faculty, teaching Physics I, Physics II, Physics Laboratory I, Physics Laboratory II. Since 2002, she was a professor at Jose Antonio Páez University, teaching Control Theory and Sensors and Data Acquisition. She is author of three books. She is member of CIHAM-UC. ORCID: 0009-0000-9406-5611
was born in Venezuela, in 1976. She She is BSc. Eng. in Civil Engineering in 1999, MSc. in Environmental Engineering in 2006 and PhD. in Engineering in 2011, all of them form the University of Carabobo (UC), Venezuela. From 2002 to the present, she is professor in School of Civil Engineering. From 2006, she is member and co-founder of the Center for Hydrological and Environmental Research (CIHAM-UC) belonging to UC. From 2013 to the present, she is member and coordinator of UC master program on environmental engineering. ORCID: 0000-0003-1305-5759
was born in Venezuela in 1961. She is aggregate professor of Civil and Environmental Engineering at the University of Carabobo (UC), Venezuela. She is active researcher at Center for Environmental and Hydrological Research of the UC. From 2014 to the present, she is an active professor at Civil Engineering School of the UC. Since 1986, she holds a BSc. Eng. in Civil Engineer from UC and a MSc. in Environmental Engineering. Since 2023, she reached her PhD degree in Environmental Engineering at the UC. ORCID: 0000-0002-7737-2545
was born in Peru, 1943. He received BSc. Eng. in Agricultural Engineering, in 1968, mention in water resources achieved from the National Agrarian University, Peru. MSc. in Agricultural Engineering in 1970, focused on irrigation and drainage engineering developed in Justus Liebig University, Federal Republic of Germany. PhD. in Water Resources Planning in 1972, from the Christian Albrecht University, Federal Republic of Germany. Sp. in Irrigation and Drainage Engineering and Saline Soils in 1972, from the German Foundation for Developing Countries. Federal Republic of Germany in 1993, the Postdoctoral degree (Visiting Professor) in Colorado State University USA ORCID: 0000-0003-2813-2147
, He is BSc. Eng. in Chemical Engineer in 1980, from the Universidad Simón Bolívar, Venezuela. Postgraduate in Applied Sciences, in 1989, from the University of Sherbrooke, Quebec, Canada, PhD in Chemical Engineering in 2000, from the University of Sherbrooke. Quebec, Canada, and Post doctorate in 2003 from the same University. Full-time professor at the University of Carabobo, Faculty of Engineering, School of Chemical Engineering (1981-2007), currently retired full professor. Founder of Research Unit in Process Engineering, and dedicated to research in area of modeling and simulation of chemical and environmental processes. Honorary member of Center for Hydrological and Environmental Research (CIHAM).ORCID: 0000-0001-6957-7287