DYNA
0012-7353
Universidad Nacional de Colombia
https://doi.org/10.15446/dyna.v85n207.68545

Recibido: 28 de octubre de 2017; Revision Received: 11 de agosto de 2018; Aceptado: 25 de septiembre de 2018

Methodology for the design and simulation of industrial facilities and production systems based on a modular approach in an "industry 4.0" context

Metodología para el diseño y simulación de instalaciones industriales y sistemas de producción basada en una visión modular bajo un contexto de "industria 4.0"

L. Alpala, a M. Alemany, b D. Peluffo-Ordoñez, c F. Bolaños, a A. Rosero, a J. Torres, d

Grupo de Investigación Eslinga, Universidad Cooperativa de Colombia-Pasto. luis.alpala@campusucc.edu.co, fabio.bolanos@ucc.edu.co, aura.rosero@campusucc.edu.co Universidad Cooperativa de Colombia Grupo de Investigación Eslinga Universidad Cooperativa de Colombia Pasto Colombia
Grupo de Investigación CIGIP, Universitat Politècnica de València, España. mareva@omp.upv.es Universitat Politécnica de Valencia Grupo de Investigación CIGIP Universitat Politècnica de València Spain
Universidad Yachay Tech - Ecuador. Corporación Autónoma de Nariño, Colombia, SDAS Research Group. dpeluffo@yachaytech.edu.ec Universidad Yachay Tech Ecuador
Grupo de Investigación en Informática Gráfica, Universidad de Granada, España. jctorres@ugr.es Universidad de Granada Grupo de Investigación en Informática Gráfica Universidad de Granada Spain

Abstract

The design of the industrial facilities distribution is one of the most important decisions to be made, as it will condition the operation thereof. The concept of industrial installation as it is known today has evolved to the point that it integrates automation and information systems. Indeed, such evolution has given rise to the so-called intelligent factory. At present, in order to produce customized mass products according to customers' requirements, it is become an important issue the distribution of facilities with the generation of successful layout designs, based on the flexibility, modularity and easy configuration of production systems.

This paper proposes a methodology to solve the problem of plant distribution design and redesign based upon a novel modular approach within an industry 4.0 context. Proposed methodology is an adaptation of the "SLP" Methodology (Systematic Layout Planning-Simulation) so-called SLP Modulary 4.0 (systematic planning of the Layout based on a modular vision under a context of Industry 4.0); this methodology incorporates in its structure an integrated design system (IDS) into its structure, which allows collaborative work with different CAD design and simulation tools. For the validation of the proposed methodology, a case study of a coffee processing plant is considered. The distribution design results obtained from the case study prove the benefit and usefulness of the proposed methodology.

Keywords:

layout, simulation, production system, industrial facilities, Industry 4.0, coffee processing plant.

Resumen

El diseño de la distribución en planta es una de las decisiones más relevantes pues condicionará la operación de la misma. La forma de concebir una instalación industrial como se la conoce hoy en día ha ido evolucionando hasta el punto de integrar sistemas de automatización y de información, dando lugar a la denominada fabrica inteligente. En la actualidad, con el fin de producir productos personalizados en masa según requerimientos de los clientes, ha tomado considerable importancia la distribución de instalaciones con la generación de diseños exitosos de layout, basados en la flexibilidad, modularidad y fácil configuración de los sistemas de producción.

En este trabajo se propone una metodología para resolver el problema del diseño y rediseño de distribución en planta con un novedoso enfoque modular basado en un contexto de industria 4.0. La metodología presentada es una adaptación de la Metodología “SLP” (Systematic Layout Planning) denominada SLP Modulary 4.0 (planificación sistemática de Layout basada en una visión modular bajo un contexto de Industria 4.0), esta metodología incorpora en su estructura un diseño integrado de sistemas (IDS) que permite trabajar de forma colaborativa con diferentes herramientas de Diseño CAD y simulación. Para la validación de la metodología propuesta se considera un caso de estudio de una planta de procesado de café. Los resultados de diseño de distribución obtenidos comprueban el beneficio y la utilidad de la metodología propuesta.

Palabras clave:

distribución de planta, simulación, sistema de producción, instalación industrial, Industria 4.0 planta de café.

1. Introduction

The industry 4.0 is a new concept that has been developed in the time frame of the information age, which is characterized by the inclusion of information and communication technologies (ICT) in different settings, and they have been modified the work methods in the organizations [1]. In this way, the concept of Industry 4.0 defines a new industrial development age, which it incorporates the use of ICTs and the integrated automation systems, not only in the stages of productive systems design, but also in the operation and optimization of these systems [2]. Thus, from this new paradigm, it is possible to design and put into operation intelligent production, flexible, modular and adaptable systems to constant changes, so they respond to the final consumer’s necessities, without sacrificing neither the efficiency in the use of the resources nor the productivity [3,4]. Nowadays, the industry 4.0 is one of the most debated topics between professionals and academics in Germany [5]. Since the federal German government announced in 2011 the Industry 4.0 as one of the key initiatives of its high technology strategies [6], numerous academic publications, practical articles and conferences have been focused on this topic the past years.

On the other hand, a good plant distribution design, from de initial phases of the project conception of the industrial plant assembly allows to ensure its efficiency in productivity, reduction of cycles production, work in process, useless time, bottleneck, material handling time [7,8]. In the context of this new age, known also as the fourth industrial revolution, the use of computer tools becomes necessary, especially during the initial stages of the industrial plant design and the production system. Some examples of this statement can be found in [9-11] where three basic types of specialized software tools are used to support the layout design and production systems such as: The tools CAD (Computer Aided Design), the information systems linked to collaborative computer tools in the cloud and the application of simulation and optimization of production processes. Nevertheless, since the concept of Industry 4.0 is in development, it has not yet been possible for the mentioned tools to be used with all their potential and even their incorporation in the design planning of facilities.

Lately, the plant distribution design (layout) has acquired a completely new meaning due to the fast advances in the technology and information age [12]. The planning in the facilities and production systems must be well supported with an analysis of plant distribution to achieve excellence and remain competitive in the markets. According to [13] there are reasons to believe that the plant distribution design will be one of the most important fields in the future since it represents one of the most promising areas to improve the productivity and competitiveness against hyperconnected customers.

The concept about plant distribution design in a context of industry 4.0 must change regarding the traditional design: the new plants that incorporate the industry 4.0 approach should be modular, flexible and their configuration of production system should adapt to changes in real time without incurring costs in order to produce personalized products. However, there is no evidence of any methodology of distribution plant design that considers the novel inherent aspects in Industrial 4.0. For this reason, in this article, a methodology is proposed to solve the problem of plant distribution design and redesign with a novel modular and simulation approach under an industry 4.0 context. The presented methodology, called SLP Modulary 4.0, which means (systematic Layout planning based on a modular vision under a context of "industry 4.0"), is an adaptation of the Methodology "SLP" (Systematic Layout Planning), and the methodology recently proposed by [14] which incorporates a series of steps organized sequentially to address the problem of plant distribution view from the concept of production systems and plant design. In addition to the modular approach and the context of industry 4.0, the new methodology incorporates the integrated design of systems (IDS) which are computer tools that allow working with several softwares such as CAD design, simulation and information systems with platforms in the cloud in a collaborative way.

The rest of the article is organized as follows: In section 2, the proposed methodology for the plant distribution design is presented. In section 3, the previous methodology is applied to a specific case study, while in section 4, the results obtained are analyzed. Finally, in section 5, the conclusions of this work and some final comments are presented.

2. Proposal of methodology for the plant distribution design in a context of industry 4.0

The methodology proposed in this research aims to design the layout of industrial facilities and production systems using simulation and a modular vision under a context of "Industry 4.0". The methodology can be used in the plant distribution design of new facilities or for the redesign of existing facilities, for any type of industry. The proposed methodology is based on the modular and flexible concept, these concepts are linked to the intelligent factory where the plant distribution will no longer be fixed type, but configurable by the modularity concept that is adaptable to changes in the productive process, it means that, facing the personalized products, the plant must be able to adapt to any change in real time.

From the methodology it is also proposed to use virtual reality simulation in order to observe and analyze any scenario that can appear with different problems related to the demand and the production system, with this, it could be possible to analyze the factors that relate the production systems and the industry 4.0. Therefore, the advantages of the modular approach and the simulation in the methodology will allow the designer to take more accurate decisions regarding the plant distribution and all the factors that are part of it.

Below, in Fig.1 the scheme of the proposed methodology is shown. This methodology consists of 8 stages to guide the designer to take the most accurate decisions when facing the problem of plant distribution, the phases indicated in the red box show the approach of The Industry 4.0.

Proposed methodology SLP-Modulary 4.0

Figure 1:: Proposed methodology SLP-Modulary 4.0

Source: Adapt from [14]

The proposed methodology has incorporated into its structure the so-called integrated system design see Fig.2 which is based on collaborative systems, relationship of design software, simulation and data systems in the cloud as a database. The appropriate use of these tools can save costs and time because of the imitation of the real model through a computer model before it is definitely built. The right use of these tools from the first to the last phase of the methodology will allow achieving a project according to the real system for its subsequent implementation.

Relationship of integrated design of systems for the industrial installation design.

Figure 2: Relationship of integrated design of systems for the industrial installation design.

Source: The authors.

The steps of the methodology represented in Fig.1 are described and analyzed in the following section by applying the case study to a coffee processing plant.

3. Methodology application to a coffee processing plant

To validate the proposed methodology, a case study has been taken to the distribution design of layout of a coffee processing plant located in the department of Nariño-Colombia. The design of this plant may represent a beginning to the design and assembly of industrial plants with an industry 4.0 approach in Colombia; the plant design will consider the industry 4.0 approach in terms of modularity and flexibility to be able to adapt quickly to changes after the personalized products production.

Next, the stages of the proposed methodology are analyzed through the case study:

3.1. Stage 1: analysis of products-quantities

This phase is the starting point of the methodology and refers to the study and analysis of the products and quantities that will be manufactured in the plant, that is why the following items should be analyzed at least to be taken into account in the design of the industrial installation: Market study and demand foresight, manufacturing strategy according to the degree of product personalization, type of plant distribution, capacity analysis of the product.

For the posed case study, a prior special study of the coffee products to be manufactured was conducted; for that, it was necessary to carry out a complete study of the products and quantities to be produced.

3.2. Stage 2: analysis and representation of the productive process

In the analysis and representation of the productive process, material flows, information, distances, cycle times, work stations, inventories, etc. are identified. Different types of representation of the production process can be used such as the analytical, synoptic, process flow, block diagram, etc. When making the representation of the diagram it is also necessary to identify the type of technology that will be used, which can be classified into 3 categories: 1. Conventional technology. 2. Semi-automatic technology. 3. Automatic technology. [15].

For the case of the coffee processing plant, the process is defined and represented taking into account that it must ensure flexibility and fast configurations for the correct transformation of its products; the machines used in the process are automatic. The representation of the process is shown in Fig.3 and its activities are: Reception (1), weighing and storage of dry parchment coffee (2 and 3), Cleaning (4), automatic coffee transport until threshing (5), threshing and selection of almond coffee by size (6), automatic transport of coffee (7), storage of coffee in silos (8), selection of coffee by defects (9), storage of coffee in silos (10), roasting and cooling in 18 kg coffee batches (11), automatic transport of green coffee from silos to toaster machine (12), automatic roasted coffee transport from toaster machine to silos (13), silos of roasted and ground coffee storage (14), Grinding (15), dosing (16), coffee packaging and labeling (17) and storage of finished product (18).

Diagram of the process

Figure. 3: Diagram of the process

Source: The authors.

3.3. Stage 3: analysis of factors and limitations

The factors in a production plant are those that intervene in the productive process in a variable or susceptible way of variation and which alteration causes modifications in the result of the production process.

In this research, two groups of factor types have been classified. Table 1 shows some factors that have been taken into account in the design and plant distribution, however, depending on the project these factors may change.

Table 1: Factors related to production and industry 4.0 to consider in the distribution plant design.

Source: The authors

3.4. Stage 4: Analysis of Area relationship

In this stage, an analysis is made about all the areas that will be part of the industrial installation, including the administrative area, service area, maneuvering yards and green areas. To address the analysis of the area relationship, below some techniques are expounded and they will help the planner to establish the optimal location of everything that requires space in the most efficient way possible. The techniques analyzed in this section are the diagram of area relationship, worksheet, block and flows dimensionless diagram and studied by Stephens et al. [14]

3.4.1. Diagram of area relationship

The diagram of area relationship for the case study of the coffee processing plant is represented in the diagram in Fig. 4, for that, 20 areas were identified and analyzed following the codes of proximity needs.

Diagram of area relationship of coffee plant.

Figure 4: Diagram of area relationship of coffee plant.

Source: The authors.

This diagram shows the relationships that exist or not between all the areas of the industrial installation according to their level of importance of being close or not; in order to represent the relationships of the areas in a logical manner and to classify the intensity of these relationships, it employs the relational diagram of areas, which consists in representing the proximity needs between each area and the rest according to some defined proximity factors which are represented by a letter code, following a scale that decreases in the order of the five vowels: A (absolutely necessary), E (especially important), I (important), O (Ordinarily important) and U (Unimportant); the undesirability is represented by the letter X.

3.4.2. Worksheet of area relationship

The worksheet is an intermediate stage between the area relationship diagram and the block and flow dimensionless diagram since it identifies the areas relationships that exist for each factor, obtaining the basic data to elaborate the block dimensionless diagram. Table 2 shows the worksheet for the case study, in this table you can see the level of importance that each area has in being together with others.

Table 2: Design of the worksheet in relation to the area relationship diagram

Source: The authors

3.4.3. Flow and block dimensionless diagram

The block dimensionless diagram is the first representation attempt of the plant distribution; this is the result of the area relationship diagram and the worksheet. Even though this distribution is dimensionless, that is, there are no dimensions or detailed analysis of the elements that will be part of each area; it will be the basis for making the master distribution of the layout.

Also, once the block dimensionless diagram has been made, a flow analysis is conducted according to the process diagram that has been previously represented, which must start from the reception of the raw material to the storage and shipment of finished products. An important aspect to take into account in this diagram is the modularity and flexibility by which the layout will be design later. Figure 5 shows the block and flow dimensionless diagram for the coffee processing plant.

Block and flow dimensionless diagram of coffee roasting plant.

Figure 5: Block and flow dimensionless diagram of coffee roasting plant.

Source: The authors.

3.5. Stage 5: analysis of the relation of spaces

This stage must be worked in depth taking into account architectural and Industrial Engineering concepts, in this way it allows to achieve a layout according to the needs of the production system and Industry 4.0.

To make the analysis of spaces relationship, it must be taken into account the aspects that are exposed in the following subsections:

3.5.1. Spaces design that includes the concept of modular distribution

For this research it has been proposed to work as shown in Fig. 6 a system of markings for the modular design of the layout, this design makes it possible that the different routes that have to execute the transport systems, maintenance, machinery and physical facilities (walls) are conducted in a flexible way.

Representation of route flows for transport and maintenance systems. a) Flexible route design, b) Flexible layout design, c) Flexible route design in an area with equipment and machinery.

Figure. 6: Representation of route flows for transport and maintenance systems. a) Flexible route design, b) Flexible layout design, c) Flexible route design in an area with equipment and machinery.

Source: The authors.

In Fig. 6 (a) there are 4 rout trajectories (R1, R2, R3 and R4) that the handling and transport systems can follow according to their programmed destination. The delineations of the marks for the tours will be special and must not influence the way of producing the products, these markings are only a guide so that the plant can be modular flexible and configurable to changes in real time. The rout flows for the transport and handling systems will be marked along with RFID or QR labels, these systems will communicate with the transport and handling systems and will allow guiding them according to the route programming they must carry out.

3.5.2. Analysis of factors (production and Industry 4.0) on the layout.

In stage 2 the factors related to production and Industry 4.0 are analyzed, in this stage they must be designed and located in the different areas according to their function, for this the CAD (Computer aided design) systems are used to conduct the design of these factors and their relationship and location on the layout, this allows to take decisions before finally building the installation, for the plant design with an approach of industry 4.0, the CAD design will be fundamental in all aspects that relate the modular and flexible concept.

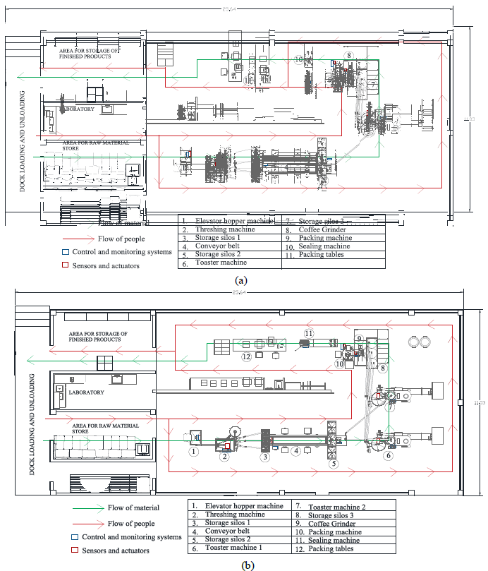
Following the case study, Fig.7 shows the layout design of the coffee processing plant. The design follows the areas analyzed previously in the relationship diagram; the facilities of this plant were designed in a modular way, that is to say that the walls, machines, equipment and other factors can be configured according to production requirements.

Layout design of coffee processing plant

Figure. 7: Layout design of coffee processing plant

Source: The authors.

3.5.3. Simulation of the plant productive process

Once the complete design of the layout is obtained, a simulation of the productive process is made according to the configurations that can be made after the customized products production. The simulation will allow analyzing the production process in terms of capacities, line balancing, inventories, routes, etc., according to a real operating context.

3.6. Stage 6: generation of design alternatives

3.6.1. Definition of criteria / indicators

Depending on the activity of the layout design project that is being conducted, the criteria may change, for the case study some criteria have been defined to be considered for the layout evaluation, such as:

  • Manpower: Reduce or make flexible workers at the time to do multiple tasks.

  • Production capacity: Maximum utilization of the production capacity of the machines and the plant.

  • Flow of route material: Refers to minimize the distances traveled by the materials within the process.

  • Cycle time: Refers to minimize the time that it takes to produce a number of products in a specific time.

  • Cost: Refers to minimize costs related to the handling of materials inside the plant.

3.6.2. Generation of layout alternatives

It is recommended to generate simulation scenarios for each layout made in order to evaluate their behavior and functionality. To generate the scenarios it is necessary to follow a simulation methodology, in this case it is recommended to follow the simulation methodology of discrete events proposed by Giménez et al. [16]

In the case of the coffee processing plant, 2 layouts alternatives were initially represented as shown in Fig.8,

Distribution alternatives for the coffee processing plant. a) Layout alternatives 1, b) Layout alternative 2.

Figure. 8: Distribution alternatives for the coffee processing plant. a) Layout alternatives 1, b) Layout alternative 2.

Source: The authors.

In Fig. 8 (a) shows the representation of the route of flow material, a bottle neck is also analyzed in the roasting work station, according to the simulation conducted; after this it is proposed a second scenario Fig. 8 (b) in which 2 roasting machines are incorporated and a new layout is configured for the route of the material and the operators.

3.7. Stage 7: multi-criteria evaluation

The multicriteria evaluation is conducted in order to know which layout will be the most suitable for the final design of the plant. To do this, first of all, the alternatives are evaluated according to some established criteria with their respective weighting scales; to do this the following steps are followed (see Fig.9).

Representation of multi-criteria tables.

Figure. 9: Representation of multi-criteria tables.

Source: The authors.

  1. Define the actions: The actions refer to the possible alternatives that one wish to evaluate, for our case they will be the layouts.

  2. Define the criteria: The criteria can be qualitative or quantitative and are defined according to what one wants to evaluate in the project.

  3. Model the preferences: That is, how two actions are compared, the possible results can be of type (preference, indifference, incomparable).

The multicriteria evaluation for the case of layout designs of the coffee processing plant was made through the Visual-Promethee Version 1.4 program, taking into account the 3 previous steps, the results are shown in Table 3, the data is evaluated according to the criteria previously defined, from which it could be concluded that the best option is Layout 2.

Table 3: Multicriteria table used to evaluate the layouts of the coffee processing plant.

Source: The authors.

3.8. Stage 8: selected design

Finally, according to the designer's decisions about the type of evaluation conducted to define the best layout, a definitive layout design will be obtained for its implementation. The final layout must contain detailed information of the entire production system, in accordance with current regulations and the consideration of being flexible in the case of Industry 4.0.

Also, in this phase it is necessary to make plans, videos and images about the final layout in order to show the results obtained, as shown in Fig.10 the selected and finished layout design of the coffee processing plant.

Final layout design made in 3D.

Figure. 10: Final layout design made in 3D.

Source: The authors

4. Conclusions

The methodology proposed for the design of plant distribution is based fundamentally on the approach of the industry 4.0, because nowadays the new industrial facilities built to be competitive in the market must include the integration of the information and automation systems in their system, the planning of the layout design therefore must be done in a modular, flexible and adaptable way to changes according to customer demand. Although the term of industry 4.0 is something new and all the plant designs that are built will have to define new layout design terms of the intelligent factory.

The smart factory is not far from being conceived for the coming years, since nowadays all the elements that are part of the industry 4.0 already exist, for this reason it is necessary to continue studying how to integrate the different factors of Industry 4.0 and production to work according to the specific distributions of layouts.

The modular design of the facilities with respect to their production system will allow all the factors that are part of it to be easily adapted to configurations after the production of personalized products or the introduction of new products.

Acknowledgements

Acknowledgements

Authors acknowledge the invaluable support given by the SDAS Research Group (www.sdas-group.com).

Bibliografía

  1. [1] Esmaeilian, B., Behdad, S. and Wang, B., The evolution and future of manufacturing: A review. Journal of Manufacturing Systems, 39, pp. 79-100, 2016. DOI: 10.1016/j.jmsy.2016.03.001 [DOI] 🠔
  2. [2] Choi, S., et al., Digital manufacturing in smart manufacturing systems: contribution, barriers, and future directions. Proceedings of the IFIP International Conference on Advances in Production Management Systems. Springer International Publishing, pp. 21-29, 2015. DOI: 10.1007/978-3-319-22759-7_3 [DOI] 🠔
  3. [3] Fang-Ying, C., Jian-Feng, L. and Hao, Z., Factory planning and digital factory. Proceedings of the Audio Language and Image Processing (ICALIP) International Conference on IEEE, pp. 499-502, 2010. DOI: 10.1109/ICALIP.2010.5684524 [DOI] 🠔
  4. [4] Zhou, K., Liu, T. and Zhou, L., Industry 4.0: Towards future industrial opportunities and challenges. Proceedings of the Fuzzy Systems and Knowledge Discovery (FSKD) 12th International Conference on IEEE, pp. 2147-2152, 2015. DOI: 10.1109/FSKD.2015.7382284 [DOI] 🠔
  5. [5] Dais, S., Industrie 4.0 in produktion, automatisierung und logistik. Anwendung. Technologien und Migration [Online], 2014. Available at: http://link.springer.com/chapter/10.1007/978-3-658-04682-8_33 [URL] 🠔
  6. [6] Kagermann, H., Chancen von Industrie 4.0 nutzen. Handbuch Industrie 4.0 Bd. 4. [Online] pp. 235-246, Springer Berlin Heidelberg, 2017. Available at: http://link.springer.com/chapter/10.1007/978-3-658-04682-8_31 [URL] 🠔
  7. [7] Singh, A.P. and Yilma, M., Production floor layout using systematic layout planning in Can manufacturing company. Proceedings of the Control, Decision and Information Technologies (CoDIT) International Conference on IEEE, pp. 822-828, 2013. DOI: 10.1109/CoDIT.2013.6689649 [DOI] 🠔
  8. [8] Rüßmann, M., et al., Industry 4.0: The future of productivity and growth in manufacturing industries [Online]. Boston Consulting Group, 2015. Available at: http://www.inovasyon.org/pdf/bcg.perspectives_Industry.4.0_2015.pdf [URL] 🠔
  9. [9] Dias, L., et al., Layout and process optimisation: using computer-aided design (CAD) and simulation through an integrated systems design tool. International Journal of Simulation and Process Modelling, 9(1-2), pp. 46-62, 2014. DOI: 10.1504/IJSPM.2014.061437 [DOI] 🠔
  10. [10] Vik, P., et al., Automatic generation of computer models through the integration of production systems design software tools. International Journal for Simulation and Multidisciplinary Design Optimization, 4(3-4), pp. 141-148, 2010. DOI: 10.1051/ijsmdo/2010018 [DOI] 🠔
  11. [11] Dias, L.S., et al., Integrated design of production systems in a lighting manufacturer using CAD and simulation in layout and process optimization. Proceedings of the XVI Latin-Ibero-American Conference on Operations Research and XLIV Brazilian Symposium on Operations Research. CLAIO-SBPO [Online], pp. 3873-3882, 2012. Available at: http://repositorium.sdum.uminho.pt/handle/1822/36958 [URL] 🠔
  12. [12] Hermann, M., Pentek, T. and Otto, B., Design principles for industrie 4.0 scenarios. Proceedings of the System Sciences (HICSS), 49th Hawaii International Conference IEEE [Online], pp. 3928-3937, 2016. Available at: http://ieeexplore.ieee.org/xpls/abs_all.jsp?arnumber=7427673 [URL] 🠔
  13. [13] Vaidya, R.D., et al., Analysis Plant Layout for Effective Production. International Journal of Engineering [Online], 6(2), pp. 4, 2013. Available at: http://citeseerx.ist.psu.edu/viewdoc/download?doi=10.1.1.677.2969&rep=rep1&type=pdf [URL] 🠔
  14. [14] Stephens, M.P. and Meyers, F.E., Manufacturing facilities design and material handling. Purdue University Press, 2013. 🠔
  15. [15] Restrepo-González, G., El concepto y alcance de la gestión tecnológica. Revista Facultad de Ingeniería, 21, pp. 178-185, 2016. 🠔
  16. [16] Giménez, A., Sánchez, J. and Barrigüete, J., La simulación como apoyo a la optimización de procesos. [Online], 2006. Available at: https://dialnet.unirioja.es/servlet/articulo?codigo=1997517 [URL] 🠔
Alpala, L.O., Alemany, M.M.E., Peluffo, D.H., Bolaños, F., Rosero, A.M. and Torres, J.C., Methodology for the design and simulation of industrial facilities and production systems based on a modular approach in an "industry 4.0" context. DYNA, 85(207), pp. 243-252, Octubre - Diciembre, 2018.
is a full-time professor of the Industrial Engineering program of the Cooperativa University of Colombia, campus Pasto, Colombia, he received the BSc. degree of Industrial Engineer in 2014, in 2016 the MSc. in Advanced Production Engineering, logistics and supply chain by the University Polytechnic of Valencia, Spain. He has experience in teaching and research in industrial plant design, simulation and optimization, planning and control of production and computer-aided design. His current lines of research are computer aided design, simulation and optimization, virtual reality, data analytics, Industry 4.0. ORCID: 0000-0002-8436-7090
is an associate professor in operation management and operations research at the Universitat Politècnica de València (UPV), Spain. She is an industrial engineer and received her PhD in Industrial Engineering from the UPV, Spain. She is member of Research Centre on Production Management and Engineering (CIGIP) and has participated in several spanish and european projects. Her research areas include production planning and control, order management, supply chain management in a deterministic and uncertain context approached both qualitatively through conceptual frameworks and conceptual models and quantitatively, through mathematical and simulation models in isolated or integrated in Decision support systems in different sectors including the agricultural one. ORCID: 0000-0002-0992-8441
he received his BSc. degree in Electronic Engineering, the MSc. and PhD degree in Industrial Automation, in 2008, 2010 and 2013, respectively all of them from the Universidad Nacional de Colombia, Manizales - Colombia. He undertook his doctoral internship at KU Leuven - Belgium. Afterwards, he worked as a post-doc at Université Catholique de Louvain at Louvain la-Neuve, Belgium. In 2014. Currently, he is working as a researcher/professor at Yachay Tech - Ecuador. He is the head of the SDAS Research Group. His main research interests are dimensionality reduction, and spectral methods for data clustering and representation. ORCID: 0000-0002-9045-6997
is graduated the BSc. in Mechanical Engineer from the Technological University of Pereira, Colombia, MSc. in University Teaching of the University of Nariño, Colombia, PhD student in Educational Sciences RUDECOLOMBIA of the University of Nariño. Dean of the Engineering Faculty of Cooperativa Univeristy of Colombia campus Pasto. With ability to manage, lead and coordinate processes in the areas of industrial maintenance, production management, industrial safety, training systems, process improvement and application of management concepts. ORCID: 0000-0002-5581-4488
received the BSc. in Agro-industrial Eng. from the University of Cauca, Colombia, Sp. in University Teaching from the University of Nariño, Colombia, and in Marketing Management, from the University Jorge Tadeo Lozano, Bogota, Colombia, and MSc. in Virtual Learning Environments, from the University of Panama. Is full-time professor and research coordinator of the Industrial Engineering program of the Faculty of Engineering of the Cooperativa University of Colombia - Pasto headquarter. Experience in university teaching in the areas of computer aided design (CAD) and research methodology. Research experience focused on the areas of materials and food industry. ORCID: 0000-0002-1659-6684
is a full professor of the University of Granada, Spain, Sp. on Computer Graphics. He received an MA in Physics in 1982 and the PhD in 1992 both from the University of Granada, Spain. He is the director of the Virtual Reality Laboratory and head of the Computer Graphics Group in the Software Systems Department both at the University of Granada, Spain. His current research interests include volume and solid modeling, virtual reality, octree representation, GIS, geometric algorithms and computer graphics applications to cultural heritage. ORCID: 0000-0002-0327-7748