Ingeniería e Investigación
0120-5609
Facultad de Ingeniería, Universidad Nacional de Colombia.
https://doi.org/10.15446/ing.investig.107160

Recibido: 6 de febrero de 2023; Aceptado: 25 de julio de 2023

Lessons Learned from Construction Site Layout Planning Practices

Lecciones aprendidas de las prácticas de planificación del diseño del sitio de construcción

S. Hansen, 1

PhD from RMIT University, Australia. Affiliation: Full time lecturer, Universitas Agung Podomoro, Indonesia. E-mail: seng.hansen@gmail.com Universitas Agung Podomoro Indonesia

The author reports no potential conflict of interest

ABSTRACT

Proper layout planning is necessary to prepare a site for construction activities, prevent potential delays, and ensure project safety and security. Despite the considerable amount of studies regarding construction site layout planning, most research has relied on fabricated data using simulations, while, in fact, site layout is unique for each construction project, and its planning requires previous experience. This paper presents an in-depth study on site layout planning practices, as observed in four actual project cases. Using an empirical case study approach, these practices are collected through site observations, document examinations, and semi-structured interviews. Several discussions related to site layout planning practices are described, including the considerations, types, tasks and benefits related to proper site layout planning. The contribution of this paper is the ability to capture some lessons learned regarding construction site layout planning from actual project cases, which can be utilized by other parties for the benefit of future projects. The lessons learned allow developing appropriate strategies required by construction project teams in order to increase their response capability and hence be able to pro-actively make decisions regarding proper site layout planning.

Keywords:

construction site, empirical case study, Indonesia, project planning.

RESUMEN

La planificación adecuada de diseño es necesaria para preparar un sitio para actividades de construcción, prevenir posibles demoras y garantizar la seguridad de un proyecto. A pesar de la cantidad considerable de estudios sobre la planeación del diseño de sitios de construcción, la mayoría de las investigaciones se han basado en datos fabricados mediante simulaciones, si bien, de hecho, el diseño de sitio es único para cada proyecto de construcción y su planeación requiere experiencia previa. Este artículo presenta un estudio a profundidad sobre prácticas de planeación para el diseño de sitio en cuatro casos de proyectos reales, Empleando un enfoque de estudio de caso empírico, se recolectan estas prácticas por medio de observaciones en sitio, examen documental y entrevistas semiestructuradas. Se describen varias discusiones relacionadas con las prácticas de planeación para el diseño de sitio, incluyendo las consideraciones, los tipos, las tareas y los beneficios relacionados con una planeación adecuada para diseño de sitio. La contribución de este artículo radica en la posibilidad de capturar algunas lecciones aprendidas con respecto a la planeación del diseño de sitios de construcción de casos reales de proyectos, las cuales pueden ser aprovechadas por otras partes para el beneficio de proyectos futuros. Las lecciones aprendidas permiten desarrollar estrategias apropiadas según lo requieran los equipos de proyectos de construcción para aumentar su capacidad de respuesta y, por tanto, ser capaces de tomar decisiones de manera proactiva respecto a la planeación adecuada del diseño de sitio.

Palabras clave:

sitio de construcción, estudio de caso empírico, Indonesia, planificación de proyectos.

Introduction

Construction projects are labor-intensive, so construction sites are prone to becoming a source of delays and conflicts if not properly managed. Researchers have recognized site layout as one of the main factors affecting construction project performance (Liang et al., 2018; Su et al., 2012; Zolfagarian and Irizarry, 2014; Tsegay et al., 2023a). Therefore, proper management is necessary to prepare a site for construction activities, as well as to prevent and overcome potential delays and ensure compliance with project occupational safety and health (OSH). As site layout affects productivity, cost, quality, duration, and work safety (Alavi and Rizk, 2021; Pradana, 2021; Sanad et al., 2008; Xu and Li, 2012; Zolfagarian and Irizarry, 2014), it must be properly planned. However, this is the most ignored aspect by project managers and site engineers (Kamil and Adnan, 2020; Sadeghpour et al., 2006; Sanad et al., 2008).

In most cases, it is carried out on a first-come-first-served basis through human judgment (Andayesh and Sadeghpour, 2013; El-Rayes and Said, 2009; Kim et al., 2021; Tam and Tong, 2003). This could result in chaotic site management, which ultimately leads to poor project performance and accidents (Mawdesley et al., 2002; Sadeghpour et al., 2006).

Construction site layout is unique for each project (Tam et al., 2002; Vashishtha, 2022; Zolfagarian and Irizarry, 2014). This concept refers to the graphical representation of the construction site, which shows the area and arrangement of the necessary facilities and resources for construction work. A site layout presents a lot of information that can be considered by site engineers and contractors in managing construction activities. Meanwhile, site layout planning is defined as the process of arranging materials, facilities, and equipment within a construction site (Pheng and Hui, 1999). A site layout plan may consist of the planned building, existing buildings, temporary facilities, utilities, and access roads (Marx and Konig, 2011).

Although there is a lot of published literature that examines site layout planning problems, most works consider data fabricated using simulations and mathematical models (Alavi and Rizk, 2017; Binhomaid, 2019; El-Rayes and Said, 2009; Fadhlan et al., 2020; Hammad et al., 2016; Kim et al., 2021; Pradana, 2021; Sanad et al., 2008; Su et al., 2012; Tsegay et al., 2023a). A model (simulation or optimization) for construction site layout planning must comply with the rules used to create it. It is very difficult to create an entirely realistic model due to a lack of research and past data. Consequently, these models may rely on many assumptions that can affect the quality of site layout planning decisions (Marx and Konig, 2011). Therefore, previous project experience can be a good lesson to obtain input information.

Lessons learned is a technique or approach aimed at gaining knowledge and understanding through experience (Weber et al. 2000). It can be used on all types of construction to improve project quality, manage changes, and control expectations (Resende et al., 2020). To obtain these lessons, an evaluation of project phase or performance is carried out by the organization. The results regarding the lessons learned must be recorded within a knowledge management process which will then be transferred to other parties (Resende et al., 2020). Considering their importance in construction projects, this paper aims to investigate the practices of site layout planning from actual project cases. Using an empirical case study approach, experience from these projects is recorded, analyzed, and shared with the objective of improving the performance of construction projects in the future.

Literature review

Construction site management

Construction site management refers to planning, organizing, and monitoring construction facilities and resources in an integrated manner for a smooth workflow. It involves many tasks such as site investigation, site layout planning, materials delivery, site housekeeping, and site communication. As construction workers spend most of their time in construction sites (Zolfagarian and Irizarry, 2014), proper site management is critical for the successful completion of construction projects. Thus, if these workers can move quickly, easily, and safely within the site, productivity will increase, and work will be completed more quickly (Sadeghpour et al., 2006; Zolfagarian and Irizarry, 2014).

On the other hand, construction space is a limited resource in construction projects (Sadeghpour and Andayesh, 2015; Tsegay et al., 2023b; Vashishtha, 2022). It is equal to other construction resources such as money, time, materials, labor, and equipment (Hegazy and Elbetagi, 1999; Sadeghpour et al., 2006). However, as an integral part of construction site management, it is a dynamic environment which ideally changes its layout in order for each project phase to be effective (Liang et al., 2018). Therefore, site layout planning is a crucial task that has a major impact on construction productivity, costs, and safety (El-Rayes and Said, 2009; Kamil and Adnan, 2020; Sj0bakk and Skjelstad, 2015).

Site layout planning is an essential task of construction site management; one of the main causes of project failure is poor site layout planning practices (Mawdesley et al., 2002; Vashishtha, 2022). On the contrary, careful planning of the site layout, including the proper placement of temporary facilities, can help project managers to achieve significant gains in the form of increased productivity, decreased travel times, and better working conditions (Fadhlan et al., 2020; Tsegay et al., 2023a; Vashishtha, 2022). According to Skejlbred et al. (2015), proper site layout planning, simultaneously considering logistics and resource allocation, must be implemented for an effective project performance.

Construction site layout

Site layout planning includes the process of identifying the position and size of temporary and permanent facilities in construction sites (Alavi and Rizk, 2017; Sanad et al., 2008; Zouein et al., 2002). Temporary facilities are those needed in carrying out work but are not a physical part of the project. This may include but is not limited to fabrication yards, warehouses, material storages, parking lots, and temporary offices (El-Rayes and Said, 2009; Sanad et al., 2008). In contrast to temporary facilities, permanent facilities will become an integral part of the finished building.

Sanad et al. (2008) highlighted the importance of site layout planning to ensure project safety and the effectiveness and efficiency of project operations. Site layout planning depends on many factors and constraints. Traditionally, site layout plans were mainly developed based on personal experience and common sense (Cheng and O'Connor, 1996; Sanad et al., 2008; Xu et al., 2020). However, complex terrain conditions cause difficulties in site layout planning (Xu et al., 2020). Moreover, site layout plans often do not reflect the actual construction process (Xu et al., 2020) because they are not updated. This causes them to be ineffective in controlling work on site.

Ignoring site layout planning in the initial phase can result in an improper site layout that requires corrections during the execution of a project. These on-site corrections imply a greater cost than preventive measures in the early stages of planning. Therefore, a considerable amount of research has attempted to improve construction site layout planning performance by introducing systematic site layout planning approaches. Cheng and O'Connor (1996) proposed an automated site layout system using a Geographical Information System (GIS) and a database management system.

Optimization techniques that consider the dynamic interdependencies of construction sites and facilities in various project phases must therefore be developed (Pteroutsatou et al., 2021). Zouein and Tommelein (1999) presented a dynamic site layout planning model using a hybrid incremental solution method. Osman et al. (2003) developed an automated computer system based on an evolutionary optimization genetic algorithm (GA) engine. Khalafallah and El-Rayes (2006) presented an optimization GA model for airport construction site layout planning in order to minimize the hazards of wildlife attractants and costs. Sanad et al. (2008) provided an optimization model for construction site layout planning that considers safety and environmental issues.

El-Rayes and Said (2009) studied a dynamic site layout planning process using approximate dynamic programming. They further developed a model to optimize construction materials storage layout for cost-effectiveness purposes (Said and El-Rayes, 2011). Through proper site layout planning (including logistics planning), poor inventories of construction materials, people movement, material transportation, and waiting times can be effectively addressed (Alavi and Rizk, 2021; Sezer and Fredriksson, 2021). Similarly, Zhang and Yu (2021) developed a mathematical model using the particle swarm optimization algorithm in order to solve the dynamic constraints of site layout planning for prefabricated components by enhancing site coordination.

Zolfagharian and Irizarry (2014) emphasized the importance of a rule-based site layout checking system. Hammad et al. (2016) developed a computational framework for estimating the travel frequencies required in site layout planning. Alavi and Rizk (2017) developed an integrated framework for construction site layout planning using GA simulation. Ning et al. (2018) found concerns related to site waste and risks resulting from the interactions between facilities, and they developed an assessment model to evaluate the safety risks in construction site layout planning. Several research works have used simulation-based techniques to solve the adjustment of materials delivery and construction schedules in addressing the dynamic site layout planning problem (Alanjari et al., 2014; Ma et al., 2005).

In recent years, some contemporary technologies have been utilized for construction site layout planning (Alavi and Rizk, 2021). For instance, Liang et al. (2018) developed a real-time construction site layout monitoring system using building information modeling (BIM). Similarly, Xu et al. (2020) proposed a platform that allows project managers to interactively place temporary facilities in a virtual environment by integrating BIM and virtual reality (VR) for highway construction. Meanwhile, Jiang et al. (2020) used drones to reconstruct the construction site in real time for the purposes of hoist and facility layout planning.

Lessons learned in construction management research

Lessons learned is a technique that can be used to improve the performance of the construction industry. This is done by studying actual experiences from previous project implementations (Hansen et al., 2018), which may be good or bad (Weber et al., 2000). Harrison (2003) sees it as an innovative approach to capture and share, either to repeat the application of good practices or to avoid the recurrence of bad practices. It is defined as "the shared knowledge that allows project managers and the organization to grow and projects to mature" (Gordon and Curlee, 2011, p. 177). According to Caldas et al. (2009), lessons learned is closely related to knowledge management, wherein the lessons learned are stored, studied, and transferred to other parties who need them (Resende et al., 2020). Von Zedtwitz (2003) called it a post-project review in which project lessons are studied and used for the benefit of future projects. In addition, Rowe and Sikes (2006) presented the lessons learned workflow, consisting of five steps, namely (1) identifying the comments and recommendations derived from a project, (2) documenting and sharing the findings, (3) analyzing and organizing the lessons learned to apply the results, (4) storing the lessons learned in a repository, and (5) retrieving them for use in subsequent projects.

This technique has been used in many construction management studies to increase the efficiency of construction projects. It can be used on all construction types to improve project quality, manage changes, and control expectations (Resende et al., 2020). For instance, Hansen et al. (2020) utilized the lessons learned from the GBK Aquatic Stadium project to develop a framework for minimizing construction change orders. Lessons learned from a high-speed rail project in Spain were used to promote owner-contractor collaboration in large-scale infrastructure projects (Hetemi et al., 2020). Shiferaw and Klakegg (2013) employed case studies to assess five aspects of project evaluation (efficiency, effectiveness, relevance, sustainability, and effects) of housing development projects in Ethiopia. The lessons learned from the Shanghai Expo Construction were used by Hu et al. (2012) to improve the design and management of multicriteria incentives in megaprojects. A benchmarking initiative focused on construction project performance measures was developed by Costa et al. (2006) using this technique.

Similarly, the lessons learned from bad practices have also been utilized to increase the knowledge and performance of construction projects. For example, the lessons learned from a cancelled urban transport project in Jakarta were provided by Hansen et al. (2018), highlighting the importance of the front-end planning (FEP) phase in infrastructure projects. Meanwhile, three examples of incidents that can impact construction projects and lead to extensive delays and cost overruns were discussed in detail by Baroncini and Wong (2022).

Methodology

This study applies a qualitative method with a case study approach. This approach can be effectively applied to research focusing on 'how' and 'why' questions about a contemporary set of events where the researcher has little or no control over the research object (Yin, 2003). In this research context, it is useful for exploring insights from actual construction projects regarding previously implemented site layout practices. Four project cases were successfully collected, whose brief profiles are presented in Table 1. They are actual construction projects with different backgrounds and geographies, aiming to provide researchers with more diverse data.

Table 1: Project profiles

Source: Author

The data collection techniques consisted of site observations, document examinations, and semi-structured interviews. Site observations were carried out by visiting construction sites directly in order to gain an understanding of actual field conditions. The data collected come in the form of photos and videos. Document examinations were carried out, requesting a site layout image of each project. Meanwhile, semi-structured interviews were conducted with four project managers (one for each project). This is a small sample size, considering the narrow research scope (focused on construction site layout practices), but it includes homogeneous interviewees (project managers) with a high level of expertise (Hansen, 2021). The list of interview questions is presented in Table 2. The analysis of the interview results involved the process of familiarizing oneself with and reviewing the data. Familiarization was carried out by reading the interview transcripts repeatedly, and data analysis used coding analysis techniques.

Table 2: Interview questions matrix

Source: Author

Results and discussion

Case study 1 - College hall building

Project A was a small-scale project aimed at expanding an existing college building with the addition of a hall made of reinforced concrete and steel structures. The site area was very limited, and hence there was little space for storage. Due to the small scale and short duration of the project, the contractor prepared only one site layout plan (Figure 1). The results of the interviews describe the five steps of site layout planning: (1) planning access, mobilizing heavy equipment and materials; (2) determining the location of beds, storage, and workshop areas; (3) managing work hours and traffic because the project took place within a campus environment; (4) determining the position of the mobile crane; and (5) planning the location of the OSH signs on site.

Site layout plan for Project A

Figure 1: Site layout plan for Project A

Source: Author, based on project documentation

The contractor acknowledged that there were several challenges in developing the site layout plan due to space limitations. Structural steel is a major material that must be considered with regard to the delivery process and its placement on site. Even though the OSH signs were planned, site observation reported no signs on the project site or around the campus area, potentially endangering workers and passers-by in the surrounding area. Considering that the project is in a public area, traffic and OSH signs must be provided.

Case study 2 - Fast-food restaurant building

Project B was a fast-food restaurant project with a short duration and a simple design. As it would function as a fast-food restaurant, the large parking area allocated for the project aided the site layout planning. Therefore, the contractor applied static planning with only one layout (Figure 2). Workshop and storage areas could be placed in the parking area. Based on the interview, apart from paying attention to temporary storage facilities and workshops, the contractor had to prepare housing for the workers. However, due to the short duration of the work, they decided not to build temporary housing, but to rent houses around the project area.

Site layout plan for Project B

Figure 2: Site layout plan for Project B

Source: Author, based on project documentation

Site observation showed a bad practice: some materials were eventually stored in the finished building when the storage material was removed because paving block work would be carried out in the parking area. This has the potential to cause damage to the completed architectural work. Therefore, it is recommended that at least two site layout plans be made, so that the contractor can consider and arrange any storage areas that are still needed. Inappropriate site layout planning can hinder project performance and quality, which was also recognized by the contractor.

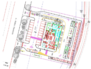
Case study 3 - Car showroom building

Project C was a 3-storey car showroom building project covering an area of 37 868 m2. It had no site layout problems because there was enough space for material storage and workshops (Figure 3). Other temporary facilities available were a workers' mess, a site office, a meeting room, a prayer room, and parking lots. According on the results of the interview, the work implementation was carried out in stages, which were divided into five zones due to the large area of the project.

Site layout plan for Project C

Figure 3: Site layout plan for Project C

Source: Author, based on project documentation

Other issues that had to be considered by the contractor were the type and conditions of the soil (as it was a paddy field) and the relocation of the warehouse area and the workers' dormitories. The type and conditions of the soil had to be improved because the project would be traversed by heavy equipment. The workers' dormitories and the warehouse were also moved from their initial location in the southwest area to the northeast area from mid-project until its completion. This aimed to make mobility more efficient due to the large project area and the division of work zones. Site observation showed no canteen for workers, so they workers had to look for food vendors, which were quite far away. A temporary canteen or catering distribution area could have been built for workers in the project area, so they would not have to waste time looking for food during break times.

Case study 4 - Mixed-use building

Project D was an apartment with a superblock concept and luxury offices. It is located close to various shopping centers, hospitals, schools, and universities. Due to the complexity of the work, site layout planning was carried out in stages consisting of six site layout plans, namely phase 1 for excavation work (Figure 4a), phase 2 for substructure work (Figure 4b), phase 3 for tower construction (Figure 4c), phase 4 for tower structure, architecture, and MEP works (Figure 4d), phase 5 for post-structure topping off (Figure 4e), and phase 6 for MEP and fitting out works (Figure 4f).

Site layout plan for Project D

Figure 4: Site layout plan for Project D

Source: Author, based on project documentation

As seen in these pictures, there was a gradual change in the site layout planning following the developments and changes in work over time. The first site layout plan displays site access, work area boundaries, and building plan spots. The second layout plan displays the number and location of the tower cranes used as well as the distribution of work zones for substructure works. The third layout plan maps traffic routes and the locations of storages and workshop areas. In the fourth layout plan, there are more storages for architecture and mechanical, electrical, and plumbing (MEP) works. The fifth layout plan is like the fourth one, albeit with reduced heavy equipment except for tower cranes. Meanwhile, in the sixth layout plan, the tower cranes and several workshops and storages have been dismantled.

The interview results showed that the limited space for the project was one of the main reasons for implementing the dynamic site layout planning method. Even though this planning method is efficient, the contractor needs to devote time and resources to repositioning warehouses, workshops, and other temporary facilities. Site observation reported a good housekeeping practice by the contractor. In general, the site layout planning facilitated the coordination and execution of work due to faster mobility and an organized environment.

Planning construction site layout: good and bad practices

Construction site layout planning is a complex task involving many interrelated factors and possible solutions to choose from (Abdel-Fattah, 2013; Kumar and Bansal, 2015). It is a step-by-step planning process that must consider the interactions in the flow of materials, equipment, and workers (Binhomaid, 2019) across a construction site, which is a limited resource (Sadeghpour and Andayesh, 2015). This is especially evident in Projects A and D, where limited space is the main issue. Similarly, Tsegay et al. (2023b) argues that, as space is limited, especially for construction projects in the city center, it must be optimally utilized. The narrower the site area, the more considerations that must be a concern for the site engineer and contractor. Therefore, it is crucial for the site engineer and contractor to collect all the necessary information about the project, the site, and the environment (including topography, soil conditions, and existing buildings and access). For example, in Project A the mobilization of heavy equipment is an important consideration since it will pass through existing buildings. In Project C, the type and conditions of the soil are a major consideration because the site used to be a paddy field, so soil strengthening and stabilization had to be performed. This becomes even more complex in Project D, which is in a busy city center with heavy traffic. Thus, that apart from internal site management, contractors also had to pay attention to public safety during site layout planning.

Ma et al. (2005) argue that construction site layout planning should be a dynamic planning activity that varies from one phase to the next. Static site layout planning identifies static locations for all facilities on site in a single site layout plan (El-Rayes and Said, 2009). Dynamic site layout planning requires updating the positions of all or part of the temporary facilities over the entire project duration (El-Rayes and Said, 2009). Unlike the former, it allows for the reuse of space, the relocation of temporary facilities, and changing space needs (El-Rayes and Said, 2009). The benefit of implementing dynamic site layout planning is that it significantly lowers operating costs for the contractors (Petroutsatou et al., 2021). On complex or large-scale projects, multiple site layout plans are required, so dynamic site layout planning is recommended. Out of the four project cases, Project D is the most complex, large-scale project, so the contractor created six site layout plans. Meanwhile, in Projects A and B, there is only one site layout plan, and, in Project C, there are only two site layout plans. It is recommended that at least three site layout plans be made, following the three main stages of a project: substructure, upper structure, and finishing works. On small scale projects, a minimum of two site layout plans is recommended, one for substructure works and another one for upper structure works.

There are several important tasks in site layout planning, namely identifying the facilities to be arranged, determining acceptable travel distances, and safety considerations (Alavi and Rizk, 2021). Facility identification is carried out to determine the facilities available at the project site and to determine their distribution locations. Identification is also performed to determine the type of facility being reviewed. The type of facility to be moved is taken into consideration in site layout optimization. In small and simple projects (i.e., Project A), there may not be many facilities that need to be arranged, but, in large and complex ones (e.g., Project D) there are many facilities that must be properly managed for the smooth progress of work on site.

In general, facilities in construction projects can be grouped into two types: fixed and temporary (Fadhlan et al., 2020). Fixed or permanent facilities are those that are part of the project and its all-associated elements, such as fixtures, drainage, retaining walls, etc. Meanwhile, temporary facilities are those needed to support safe and efficient construction operations, including guard posts, warehouses, parking lots, wood fabrication, worker toilets, canteens, scaffolding stockyards, sand and aggregate stockyards, and site offices. This study also found a correlation between site space and facility placement, where the wider a construction site, the higher the tendency towards static layout planning, as seen in Project C. Meanwhile, the more congested a construction site, the higher the tendency towards dynamic layout planning as seen in Project D.

Traveling distance means the distance reached during the movement of materials, workers, and equipment from one facility to another (Abdel-Fattah, 2013; Adhika and Nurcahyo, 2017; Fadhlan et al., 2020). It expresses the preference for a facility or an object to be located within a certain distance of another facility or object on site (Sadeghpour et al., 2006). Zhou (2006) argued that rectilinear or Euclidean distance can be used to measure a distance on site. On projects with a large site area, the placement of facilities and objects becomes increasingly dispersed, which makes reducing travel distance and trip frequency the main goal (Fadhlan et al., 2020). For instance, Project C implemented a work-zoning strategy to achieve this goal.

Safety and security considerations are another important criterion in site layout planning (Abdel-Fattah, 2013; Adhika and Nurcahyo, 2017; Kumar and Bansal, 2015; Sanad et al., 2008; Tsegay et al., 2023a). Irregularities in the arrangement of site layouts can affect site safety and security for workers and the public. The risk level that can arise is not the same from one facility to another. Therefore, the contractor must make efforts to identify the hazard zones and calculate the safety index (Adhika and Nurcahyo, 2017; Kumar and Bansal, 2015). The risk level is divided into several zones, obtaining one value for each one (Adhika and Nurcahyo, 2017). The safety index is calculated through the relationship between the value of the safety level between facilities and the frequency of movements between facilities (Adhika and Nurcahyo, 2017). At the project site, workers can pass through several hazard zones at the same time when moving from one facility to another, so the safety level between facilities is calculated using the distance proportion. Even though safety considerations are an important issue in the four project cases, the contractors did not calculate the safety index to optimize the site layout.

Finally, proper site layout planning provides benefits for contractors to manage work effectively and efficiently. A well-planned site layout will increase productivity and safety as well as minimize the travel time spent on materials handling (Kumar and Bansal, 2015; Sadeghpour et al., 2006). This was agreed by all interviewees. Project C interviewee added that, with a proper site layout plan, project access and the location and number of temporary facilities become clear, making site coordination more efficient. On the other hand, these plans must be updated regularly according to arising needs. This is essential for site engineers and contractors to make better decisions faster, e.g., decisions related to work changes (as in Projects B and D) and the need to divide working zones (as in Project C).

Research implications

Construction site layout planning is one of the most crucial tasks that affect project success (Fadhlan et al., 2020; Su, 2013). It can influence project cost, duration, productivity, safety, quality, and conflicts (Dio and Frenky, 2022; Kumar and Bansal, 2015; Sadeghpour et al., 2006; Tsegay et al., 2023a). However, construction site layout planning practices, especially in Indonesia, are still rarely studied. Thus, this research highlights the importance of construction site layout planning as a crucial force in construction project implementation. Research on construction site layout planning practices is carried out using a case study approach to obtain lessons learned empirically. By studying previous experiences, project teams can create a suitable environment for project success (Hansen et al., 2018).

The demand to make better organization and project decisions has become a challenge in the construction business, where lessons learned techniques can be applied. Increasing the use of project experiences to improve organizational performance is a practice widely adopted in previous studies. Anbari et al. (2008) emphasized the regular collection of lessons learned and their meaningful utilization in future projects as critical aspects of organizational competitiveness and project success.

On the other hand, Williams (2007) and Rezania and Lingham (2009) noted that any learning from a project will be largely dissipated, considering that projects are temporary organizations by nature. The lessons learned process requires specific attention so that it can be properly performed. Therefore, this paper contributes by accumulating lessons learned from construction site layout planning related to actual project cases, which can be utilized by other parties for the benefit of future projects.

In addition, the complexity of construction sites requires site engineers and contractors to be able to properly perform site layout planning (Kamil and Adnan, 2020). Construction site layout planning is a decision-making problem related to the allocation of facilities which has a significant impact in reducing the construction cost (Hawarneh et al., 2021). Making such decisions is a challenging task due to the interdependence of variables and affecting factors (Alavi and Rizk, 2021). In actual practice, site layout planning in construction projects still relies heavily on the intuition and experience of site engineers, who make decisions considering various project parameters and characteristics (Kim et al., 2021). As a decision-making problem, it may need both expert judgment and engineering analysis to aid in decision-making and guide the planning process. This study offers technical advice and examples of site layout planning practices in various construction projects, which can be used as lessons learned.

Construction site layout planning practice belongs to the disciplines of construction management and civil engineering. Thus, research on best practices for site layout planning is very important for site engineers and contractors to be able to manage their sites appropriately. This study offers empirical knowledge based on lessons learned from four actual project cases, aiming to improve construction site layout planning practices. As a proper site layout planning influences project performance, this research contributes to the study of engineering design by assessing the site layout planning procedures and processes of real-world cases in order to improve the efficiency and effectiveness of the decision-making process.

While this research examines construction site layout practices in the Indonesian construction sector, the findings may be of significance to other countries as well. As construction site layout planning is a complex task that requires human interpretation of site characteristics (Kim et al., 2021), the findings of this study might allow others to understand the risks of improper site layout planning, as well as to assist in making better decisions. The lessons learned from these project cases enabled the development of appropriate strategies that project teams require in order to increase their response capabilities and hence be able to pro-actively make engineering decisions regarding proper site layout planning. Thus, the findings of this study can be used as a reference for more efficient and effective project site performance, especially with advances in construction technology and research on site layout planning, which are increasingly sophisticated and diverse (Pradana, 2021), making it easier for site engineers and contractors to carry out their tasks.

Conclusions

Site layout planning is essential for all construction projects because it has a significant impact on productivity, safety, and the smooth execution of construction activities. This study focuses on site layout planning practices as observed in four actual construction project cases in Indonesia. These four projects have different site characteristics that affect site layout planning by contractors. This study found that many factors cause site layout planning to be complex, including the size and condition of the site area, the type and scale of the project, the number and types of facilities and resources to be arranged, and the site layout planning type and technique applied.

The main contribution of this study lies in establishing some lessons learned about site layout planning practices. The findings are relevant to all parties involved, and the relationship between the research object, the research context, and the parties involved is described in a coherent and in-depth manner. Thus, this study can become a reference or best practice that can be used to enable better decision-making and optimal outcomes related to construction site layout planning.

On the other hand, this research has some limitations. As a context-specific case study, it requires a small sample size to be effective. Therefore, the findings, corresponding to Indonesian construction projects, may be difficult to generalize to other research settings. In addition, lessons learned collected from actual project practices must continue to be consistently reviewed to become effective knowledge. Therefore, we recommend capturing more real-world cases regarding construction site layout planning practices, especially from projects with different geographical backgrounds and characteristics, in order to obtain a knowledge database with depth and breadth of information that is available for site engineers and contractors who will manage future projects.

Acknowledgements

Acknowledgements

The author would like to thank Arif Prayoga, Riri Vermatasari, Naila Ramadhani, Ghina Yovelia, Intan Ermariza, Siti Helena Erizti, Fitri Amaliny, Dika Syabela Yuhastri, Al Fajra, Natalia Christina, Austin Steven Febliko, Ronald Dwi Kurniawan, William, Steven Setiawan, Ivana Marcella Sumar, and Derrick Libertio for their help in the data collection process.

References

  1. Abdel-Fattah A. Dynamic site layout planning model. Doctoral thesis. University of Calgary. 2013. https://prism.ucalgary.ca/bitstream/handle/11023/545/ucalgary_2013_abdel-fattah_aly.pdf?sequence=2&isAllowed=y [URL] 🠔
  2. Adhika HD, Nurcahyo CB. Optimasi site layout menggunakan multi-objectives function pada proyek pembangunan transmart rungkut surabaya. Jurnal Teknik ITS. 2017;61C22-C26. https://ejurnal.its.ac.id/index.php/teknik/article/viewFile/21535/3510 [URL] 🠔
  3. Alanjari P, Razavialavi S, AbouRizk S. A simulation-based approach for material yard laydown planning. Automation in Construction. 2014;401-8. https://doi.org/10.1016/j.autcon.2013.12.010 [URL] 🠔
  4. Alavi SRR, Rizk SA. Site layout and construction plan optimization using an integrated genetic algorithm simulation framework. Journal of Computing in Civil Engineering. 2017;31404017011. https://doi.org/10.1061/(ASCE)CP.1943-5487.0000653 [URL] 🠔
  5. Alavi SRR, Rizk SA. Construction site layout planning using a simulation-based decision support tool. Logistics. 2021;5651-25. https://doi.org/10.3390/logistics5040065 [URL] 🠔
  6. Anbari F, Carayannis E, Voetsch R. Post-project reviews as a key project management competence. Technovation. 2008;2810633-643. https://doi.org/10.1016/j.technovation.2007.12.001 [URL] 🠔
  7. Andayesh M, Sadeghpour F. Dynamic site layout planning through minimization of total potential energy. Automation in Construction. 2013;3192-102. https://doi.org/10.1016/j.autcon.2012.11.039 [URL] 🠔
  8. Baroncini M, Wong C. Lessons learnt in construction projects. Swiss Re Corporate Solutions Ltd. 2022. https://corporatesolutions.swissre.com/dam/jcr:f330d163-b624-4b29-9dbd-f7632be30dba/lessons-learnt-in-construction-projects.pdf [URL] 🠔
  9. Binhomaid OS. Construction. Doctoral thesis. University of Waterloo. 2019. https://core.ac.uk/download/pdf/185636963.pdf [URL] 🠔
  10. Caldas CH, Gibson GE, Weerasooriya R, Yohe AM. Identification of effective management practices and technologies for lessons learned programs in the construction industry. Journal of Construction Engineering and Management. 2009;1356531-539. https://doi.org/10.1061/(ASCE)CO.1943-7862.0000011 [URL] 🠔
  11. Cheng MY, O'Connor JT. ArcSite: Enhanced GIS for construction site layout. Journal of Construction Engineering and Management. 1996;1224329-336. https://doi.org/10.1061/(ASCE)0733-9364(1996)122:4(329) [URL] 🠔
  12. Costa DB, Formoso CT, Kagioglou M, Alarcon LF, Caldas CH. Benchmarking initiatives in the construction industry: lessons learned and improvement opportunities. Journal of Management in Engineering. 2006;224158-167. https://doi.org/10.1061/(ASCE)0742-597X(2006)22:4(158) [URL] 🠔
  13. Dio AH, Frenky EP. Evaluasi penataan pelaksanaan pekerjaan pada sebuah site layout proyek konstruksi dari aspek waktu dan biaya dengan building information modeling 4D (studi kasus proyek X dan proyek Y). Bachelor thesis. Universitas Katolik Soegijapranata. 2022. http://repository.unika.ac.id/29392/1/21.B1.0060-Evi%20Parnius%20Frenky-COVER_a.pdf [URL] 🠔
  14. El-Rayes K, Said H. Dynamic site layout planning using approximate dynamic programming. Journal of Computing in Civil Engineering. 2009;232119-127. https://doi.org/10.1061/(ASCE)0887-3801(2009)23:2(119) [URL] 🠔
  15. Fadhlan D, Wiguna IPA, Rohman MA. Optimasi penataan site layout pada proyek Grand Dharmahusada Surabaya dengan metode logika fuzzy AHP. Jurnal Teknik ITS. 2020;92D250-D256. https://doi.org/10.12962/j23373539.v9i2.58373 [URL] 🠔
  16. Gordon RL, Curlee W. The virtual project management office: Best practices, proven methods. Berrett-Koehler Publishers. 2011. 🠔
  17. Hammad AWA, Akbamezhad A, Rey D, Waller ST. A computational method for estimating travel frequencies in site layout planning. Journal of Construction Engineering and Management. 2016;142504015102. https://doi.org/10.1061/(ASCE)CO.1943-7862.0001086 [URL] 🠔
  18. Hansen S. Characterizing interview-based studies in construction management research: Analysis of empirical literature evidences. International Conference on Innovations in Social Sciences Education and Engineering (ICOISSEE). 20211-12. https://proceedings.conference.unpas.ac.id/index.php/icoissee/article/view/724 [URL] 🠔
  19. Hansen S, Rostiyanti SF, Rif'at A. Causes, effects, and mitigations framework of contract change orders: Lessons learned from GBK aquatic stadium project. Journal of Legal Affairs and Dispute Resolution in Engineering and Construction. 2020;12105019008. https://doi.org/10.1061/(ASCE)LA.1943-4170.0000341 [URL] 🠔
  20. Hansen S, Too E, Le T. Lessons learned from a cancelled urban transport project in a developing country: The importance of the front-end planning phase. International Journal of Technology. 2018;95898-909. https://doi.org/10.14716/ijtech.v9i5.1559 [URL] 🠔
  21. Harrison W. A software engineering lessons learned repository. 27th Annual NASA Goddard/IEEE Software Engineering Workshop. Los Alamitos, California. 2003. 🠔
  22. Hawarneh AA, Bendak S, Ghanim F. Construction site layout planning problem: Past, present and future. Expert Systems with Applications. 2021;168114247. https://doi.org/10.1016/j.eswa.2020.114247 [URL] 🠔
  23. Hegazy TM, Elbeltagi E. EvoSite: Evolution-based model for site layout planning. Journal of Computing in Civil Engineering. 1999;133198-206. https://doi.org/10.1061/(ASCE)0887-3801(1999)13:3(198) [URL] 🠔
  24. Hetemi E, Gemunden HG, Mere JO. Embeddedness and actors' behaviors in large-scale project life cycle: Lessons learned from a high-speed rail project in Spain. Journal of Management in Engineering. 2020;36605020014. https://doi.org/10.1061/(ASCE)ME.1943-5479.0000849 [URL] 🠔
  25. Hu Y, Chan APC, Le Y, Jiang WP, Xie LL, Hon CHK. Improving megasite management performance through incentives: Lessons learned from the Shanghai Expo construction. Journal of Management in Engineering. 2012;283330-337. https://doi.org/10.1061/(ASCE)ME.1943-5479.0000102 [URL] 🠔
  26. Jiang W, Zhou Y, Ding L, Zhou C, Ning X. UAV-based 3D reconstruction for hoist site mapping and layout planning in petrochemical construction. Automation in Construction. 2020;113103137. https://doi.org/10.1016/j.autcon.2020.103137 [URL] 🠔
  27. Kamil AKA, Adnan AZA. Planning of construction site layout: A review. Journal of Science and Engineering Application. 2020;4143-51. https://journals.iunajaf.edu.iq/index.php/JSEA/article/view/1 [URL] 🠔
  28. Khalafallah A, El-Rayes K. Optimizing airport construction site layouts to minimize wildlife hazards. Journal of Management in Engineering. 2006;224176-185. https://doi.org/10.1061/(ASCE)0742-597X(2006)22:4(176) [URL] 🠔
  29. Kim M, Ryu HG, Kim TW. A typology model of temporary facility constraints for automated construction site layout planning. Applied Sciences. 2021;1131027. https://doi.org/10.3390/app11031027 [URL] 🠔
  30. Kumar S, Bansal VK. Framework for safe site layout planning in hilly regions. European Journal of Advances in Engineering and Technology. 2015;2414-19. https://ejaet.com/PDF/2-4/EJAET-2-4-14-19.pdf [URL] 🠔
  31. Liang CJ, Kamat VR, Menassa CM. Real-time construction site layout and equipment monitoring. Construction Research Congress. Reston, VA, USA. 2018. 🠔
  32. Ma Z, Shen Q, Zhang J. Application of 4D for dynamic site layout and management of construction projects. Automation in Construction. 2005;143369-381. https://doi.org/10.1016/j.autcon.2004.08.011 [URL] 🠔
  33. Marx A, Konig M. Preparation of constraints for construction simulation. International Workshop on Computing in Civil Engineering . Reston, VA, USA. 2011. 🠔
  34. Mawdesley MJ, Al-Jibouri SH, Yang H. Genetic algorithms for construction site layout in project planning. Journal of Construction Engineering and Management. 2002;1285418-426. https://doi.org/10.1061/(ASCE)0733-9364(2002)128:5(418) [URL] 🠔
  35. Ning X, Qi J, Wu C. A quantitative safety risk assessment model for construction site layout planning. Safety Science. 2018;104246-259. https://doi.org/10.1016/j.ssci.2018.01.016 [URL] 🠔
  36. Osman H, Georgy M, Ibrahim M. An automated system for dynamic construction site layout planning. 10th International Colloquium in Structural and Geotechnical Engineering (ICSGE 2003) . Cairo, Egypt. 2003. 🠔
  37. Petroutsatou K, Apostolidis N, Zarkada A, Ntokou A. Dynamic planning of construction site for linear projects. Infrastructures. 2021;6211-22. https://doi.org/10.3390/infrastructures6020021 [URL] 🠔
  38. Pheng LS, Hui MS. The application of JIT philosophy to construction: A case study in site layout. Construction Management & Economics. 1999;175657-668. https://doi.org/10.1080/014461999371268 [URL] 🠔
  39. Pradana HY. Site layout optimization using multi-objectives function on dormitory building project (studi kasus: Proyek Pembangunan Gedung Asrama MTSN 1 Kebumen). Bachelor thesis. Universitas Islam Indonesia. 2021. https://dspace.uii.ac.id/handle/123456789/35883 [URL] 🠔
  40. Resende CB, Volk MJ, Shane JS. Post-project evaluation and lessons learned. Construction Research Congress 2020 . Reston, VA, USA. 2020. https://ascelibrary.org/doi/10.1061/9780784482889.046 [URL] 🠔
  41. Rezania D, Lingham T. Towards a method to disseminate knowledge from the post project review. Knowledge Management Research & Practice. 2009;72172-177. https://link.springer.com/article/10.1057/kmrp.2009.9 [URL] 🠔
  42. Rowe SF, Sikes S. Lessons learned: Taking it to the next level. PMI Global Congress 2006. Seattle, Washington. 2006. https://www.pmi.org/learning/library/lessons-learned-next-level-communicating-7991 [URL] 🠔
  43. Sadeghpour F, Andayesh M. The constructs of site layout modeling: An overview. Canadian Journal of Civil Engineering. 2015;423199-212. https://doi.org/10.1139/cjce-2014-030 [URL] 🠔
  44. Sadeghpour F, Moselhi O, Alkass ST. Computer-aided site layout planning. Journal of Construction Engineering and Management. 2006;1322143-151. https://doi.org/10.1061/(ASCE)0733-9364(2006)132:2(143) [URL] 🠔
  45. Said H, El-Rayes KA. Optimizing material procurement and storage on construction sites. Journal of Construction Engineering and Management. 2011;1376421-431. https://doi.org/10.1061/(ASCE)CO.1943-7862.0000307 [URL] 🠔
  46. Sanad HM, Ammar MA, Ibrahim ME. Optimal construction site layout considering safety and environmental aspects. Journal of Construction Engineering and Management. 2008;1347536-544. https://doi.org/10.1061/(ASCE)0733-9364(2008)134:7(536) [URL] 🠔
  47. Sezer AA, Fredriksson A. Environmental impact of construction transport and the effects of building certification schemes. Resources, Conservation and Recycling. 2021;172105688. https://doi.org/10.1016/j.resconrec.2021.105688 [URL] 🠔
  48. Shiferaw AT, Klakegg OJ. Project evaluation: Accomplishments, shortfalls, and lessons learned in housing development projects in Ethiopia. Journal of Management in Engineering. 2013;293289-301. https://doi.org/10.1061/(ASCE)ME.1943-5479.0000138 [URL] 🠔
  49. Sj0bakk B, Skjelstad L. Proposing a standard template for construction site layout: A case study of a Norwegian contractor. Advances in Production Management Systems: Innovative Production Management Towards Sustainable Growth (APMS 2015). 2015 316-323. Springer. https://doi.org/10.1007/978-3-319-22756-6_39 [URL] 🠔
  50. Skejlbred S, Fossheim ME, Drevland F. Comparing site organization and logistics in the construction industry and the oil industry: A case study. 23rd Annual Conference of the International Group for Lean Construction . Perth, Australia. 2015. https://iglc.net/Papers/Details/1178 [URL] 🠔
  51. Su X. Spatial temporal information model for construction planning. Doctoral thesis. Purdue University. 2013. https://docs.lib.purdue.edu/dissertations/AAI3605150/ [URL] 🠔
  52. Su X, Andoh AR, Cai H, Pan J, Kandil A, Said HM. GIS-based dynamic construction site material layout evaluation for building renovation projects. Automation in Construction. 2012;2740-49. https://doi.org/10.1016/j.autcon.2012.04.007 [URL] 🠔
  53. Tam CM, Tong TKL. GA-ANN model for optimizing the locations of tower crane and supply points for high-rise public housing construction. Construction Management and Economics. 2003;213257-266. https://doi.org/10.1080/0144619032000049665 [URL] 🠔
  54. Tam CM, Tong TKL, Leung AWT, Chiu GWC. Site layout planning using nonstructural fuzzy decision support system. Journal of Construction Engineering and Management. 2002;1283220-231. https://doi.org/10.1061/(ASCE)0733-9364(2002)128:3(220) [URL] 🠔
  55. Tsegay FG, Mwanaumo E, Mwiya B. Mathematical optimization methods for inner-city construction site layout planning: A systematic review. Asian Journal of Civil Engineering. 2023;243781-3795. https://doi.org/10.1007/s42107-023-00713-2 [URL] 🠔
  56. Tsegay FG, Mwanaumo E, Mwiya B. Construction site layout planning practices in inner-city building projects: Space requirement variables, classification and relationship. Urban, Planning and Transport Research. 2023;1112190793. https://doi.org/10.1080/21650020.2023.2190793 [URL] 🠔
  57. Vashishtha AU. A Framework to Optimize Construction Site Layout Planning. International Research Journal of Engineering and Technology. 2022;931911-1919. https://www.irjet.net/archives/V9/i3/IRJET-V9I3347.pdf [URL] 🠔
  58. von Zedtwitz M. Post-project reviews in R&D. Research-Technology Management. 2003;46543-49. 🠔
  59. Weber R, Aha DW, Munoz-Avila H, Breslow LA. An intelligent lessons learned process. Foundations of Intelligent Systems. 2000 358-367. Springer. https://link.springer.com/chapter/10.1007/3-540-39963-1_38 [URL] 🠔
  60. Williams T. Post-project reviews to gain effective lessons learned. PMI. 2007. 🠔
  61. Xu J, Li Z. Multi-objective dynamic construction site layout planning in fuzzy random environment. Automation in Construction. 2012;27155-169. https://doi.org/10.1016/j.autcon.2012.05.017 [URL] 🠔
  62. Xu S, Fu D, Xie Y, Hou L, Bu S. Integrating BIM and VR for highway construction site layout planning. 20th COTA International Conference of Transportation Professional . Reston, VA, USA. 2020. https://doi.org/10.1061/9780784482933.093 [URL] 🠔
  63. Yin RK. Case study research: Design and methods. 3rd ed. Sage Publications. 2003. 🠔
  64. Zhang H, Yu L. Site layout planning for prefabricated components subject to dynamic and interactive constraints. Automation in Construction. 2021;126103693. https://doi.org/10.1016/j.autcon.2021.103693 [URL] 🠔
  65. Zhou F. An integrated framework for tunnel shaft construction and site layout optimization. Master's thesis. University of Alberta. 2006. https://era.library.ualberta.ca/items/ea82c2a6-b006-4618-b911-3a3c5587a541 [URL] 🠔
  66. Zolfagarian S, Irizarry J. Current trends in construction site layout planning. Construction Research Congress 2014 . Reston, VA, USA. 2014. https://doi.org/10.1061/9780784413517.176 [URL] 🠔
  67. Zouein P, Harmanani H, Hajar A. Genetic algorithm for solving site layout problem with unequal-size and constrained facilities. Journal of Computing in Civil Engineering. 2002;162143-151. https://doi.org/10.1061/(ASCE)0887-3801(2002)16:2(143) [URL] 🠔
  68. Zouein P, Tommelein I. Dynamic layout planning using a hybrid incremental solution method. Journal of Construction Engineering and Management. 1999;1256400-408. https://doi.org/10.1061/(ASCE)0733-9364(1999)125:6(400) [URL] 🠔
The author conducted the entirety of this research, from conceptualization to writing.