Cuadernos de Geografía: Revista Colombiana de Geografía
0121-215X
2256-5442
Facultad de Ciencias Humanas de la Universidad Nacional de Colombia
https://doi.org/10.15446/rcdg.v32n2.103990

Recibido: 10 de agosto de 2022; Revision Received: 30 de noviembre de 2022; Aceptado: 9 de febrero de 2023

Sintaxis espacial: metodología del análisis espacial para la prevención del COVID-19 en instituciones educativas del Urabá antioqueño*

Spatial Syntax: Spatial Analysis Methodology for the Prevention of COVID-19 in Educational Institutions of Uraba, Antioquia

Sintaxe espacial: metodologia de análise espacial para a prevenção do COVID-19 em instituições de ensino de Urabá Antioquia

P. López-Garnica, ¤a C. Bedoya Montoya, § E. Molina Flórez, ¥ R. Benavides Uribe,

Universidad Nacional de Colombia, Medellín - Colombia. pelopezg@unal.edu.co - ORCID: 0000-0001-8248-3744. Universidad Nacional de Colombia Universidad Nacional de Colombia Medellín Colombia
Universidad Nacional de Colombia, Medellín - Colombia. cmbedoya@unal.edu.co - ORCID: 0000-0001-9702-5076. Universidad Nacional de Colombia Universidad Nacional de Colombia Medellín Colombia
Universidad Nacional de Colombia, Medellín - Colombia. emolinaf@unal.edu.co - ORCID: 0000-0002-0480-8360. Universidad Nacional de Colombia Universidad Nacional de Colombia Medellín Colombia
Universidad Nacional de Colombia, Medellín - Colombia. rjbenavidesu@unal.edu.co - ORCID: 0000-0001-5276-1061. Universidad Nacional de Colombia Universidad Nacional de Colombia Medellín Colombia

Correspondencia: Pablo López-Garnica, Cra. 65 No. 59a-110b bl. 24, of. 317 - Universidad Nacional de Colombia (Sede Medellín).

Resumen

El artículo expone los resultados de un proyecto de investigación y extensión solidaria, cuyo objetivo fue diseñar metodologías derivadas de la teoría de sintaxis espacial para mitigar los efectos del contagio por COVID-19 en poblaciones de educación media, secundaria y básica del Urabá antioqueño. Teniendo en cuenta que el concepto de sintaxis espacial fue concebido como una herramienta para que los arquitectos pudieran simular los posibles efectos socioculturales de sus diseños y tomar decisiones basadas en predicciones conductuales de la población, esta investigación abordó la problemática de regreso a clases presenciales en el marco del cierre de las instituciones educativas durante la emergencia sanitaria. La metodología empleada surgió desde los lineamientos estándar de la investigación aplicada en un ambiente controlado, contemplando levantamientos arquitectónicos, elaboración de diagnósticos y análisis a partir de los gráficos de sintaxis espacial. Los hallazgos de la investigación arrojaron planos arquitectónicos de las instituciones educativas, el análisis de diferentes mapas de grafos convexos, de conectividad, axialidad, integración, elección y gráficos de isovistas de control y de visibilidad, la creación de un modelo de trabajo intersectorial entre academia y actores en el territorio y el diseño de ilustraciones para la transferencia del conocimiento ante las comunidades.

Ideas destacadas:

Artículo de investigación que aborda la posible implementación de estrategias derivadas de la teoría de sintaxis espacial para la mitigación de los efectos causados por la pandemia de COVID-19 y los cierres de las instituciones educativas en el marco de la emergencia sanitaria declarada en 2020.

Palabras clave:

análisis, arquitectura, COVID-19, infraestructura, sintaxis espacial, Urabá Antioqueño.

Abstract

The article exposes the results of a research project and Solidarity Extension, whose objective was to design methodologies derived from the theory of spatial syntax to mitigate the effects of contagion by COVID-19 in middle, secondary, and basic education populations of Uraba Antioquia. Considering that the concept of spatial syntax was conceived as a tool for architects to simulate the possible sociocultural effects of their designs and make decisions based on behavioral predictions of the population, this research addressed the problem of returning to on-site classes in the framework of the closures of educational institutions during the health emergency. The methodology used arose from the standard guidelines of applied research in a controlled environment, contemplating architectural surveys, diagnosis, and analysis from spatial syntax graphs. The findings of the research shed light around architectural plans of educational institutions, the analysis of different types of maps of convex graphs, connectivity, axiality, integration, choice and graphics of isovists of control and visibility, the creation of a model of intersectoral work between academia and actors in the territory and the design of illustrations for the transfer of knowledge to the communities.

Highlights:

Research article that addresses the possible implementation of strategies derived from spatial syntax theory to mitigate the effects caused by the COVID-19 pandemic and the closures of educational institutions in the framework of the health emergency declared in 2020.

Keywords:

analysis, architecture, COVID-19, educational infrastructure, spatial syntax, Uraba Antioqueño.

Resumo

O artigo expõe os resultados de um projeto de pesquisa e Extensão Solidária, cujo objetivo foi projetar metodologias derivadas da teoria da sintaxe espacial para mitigar os efeitos do contágio por COVID-19 em populações de ensino médio, médio e básico de Urabá Antioquia. Levando em conta que o conceito de sintaxe espacial foi concebido como uma ferramenta para os arquitetos simularem os possíveis efeitos socioculturais de seus projetos e tomarem decisões com base em previsões comportamentais da população, esta pesquisa abordou o problema do retorno às aulas presenciais no quadro do encerramento de instituições de ensino durante a emergência sanitária. A metodologia utilizada partiu das diretrizes padrão de pesquisa aplicada em ambiente controlado, contemplando levantamentos arquitetônicos, diagnósticos e análises a partir de grafos de sintaxe espacial. Os achados dos planos arquitetônicos de pesquisa de instituições de ensino, a análise de diferentes tipos de mapas de grafos convexos, conectividade, axialidade, integração, escolha e grafismos de isovistas de controle e visibilidade, a criação de um modelo de trabalho intersetorial entre academia e atores no território e o desenho de ilustrações para a transferência de conhecimento para as comunidades.

Ideias destacadas:

Artigo de pesquisa que aborda a possível implementação de estratégias derivadas da teoria da sintaxe espacial para mitigar os efeitos causados pela pandemia de COVID-19 e os fechamentos de instituições de ensino no âmbito da emergência sanitária declarada em 2020.

Palavras-chave:

análise, arquitetura, COVID-19, infraestrutura educacional, sintaxe espacial, Urabá Antioqueño.

Introducción

La pandemia por COVID-19 y las medidas adoptadas para la contención de la enfermedad en todo el mundo marcaron un hito sin precedentes en nuestra era contemporánea, cuyos efectos a mediano y largo plazo, en términos económicos, políticos, espaciales, educativos y de salud pública, se nos presentan apenas como insinuaciones de lo que podría estar por venir en el escenario de la pospandemia. En Colombia, las medidas adoptadas por el Ministerio de Salud Nacional implicaron confinamientos de la población, asignación de días específicos para el surtimiento de alimentos, promoción de plataformas digitales y aplicaciones para el autocuidado, la adaptación del trabajo y la educación a mediaciones virtuales, entre otras1.

Por lo tanto, principalmente durante los años 2020 y 2021 se establecieron medidas que tuvieron implicaciones en todos los ámbitos de la vida cotidiana y que se encontraban justificadas por la emergencia sanitaria. No obstante, las decisiones gubernamentales referentes a los confinamientos fueron cada vez menos estrictas en los campos asociados al retorno laboral no adaptable a entornos digitales y se fomentaron estrategias que dinamizaran el consumo de productos y servicios comerciales, fuertemente afectados por las restricciones a la movilidad y que incidían en las economías departamentales.

En medio de estas circunstancias, una de las principales problemáticas derivadas de la pandemia fue el cierre de escuelas y colegios en todo Colombia, ya que, si bien se establecieron directrices para que las instituciones se adaptaran a la emergencia sanitaria y se dispusieron estrategias para la mediación virtual de las clases, el país no estaba preparado en términos de conectividad y capacidad tecnológica instalada para asumir ese reto.

En medio de esta crisis y del confinamiento padecido por los investigadores, se cuestionó el pasivo papel de la arquitectura en medio de la emergencia global y cómo podría pensarse la disciplina como una estrategia para la contención del virus. Si bien la arquitectura parece distante como área temática a las ciencias de la salud, lo cierto es que la configuración de las ciudades, en la era moderna, se basó en conceptos relativos a la higiene, mientras que las preocupaciones por la iluminación y ventilación de los lugares donde habitan las personas cobraron cada vez más vigencia. Hoy sería impensable llamar vivienda a un espacio hermético que no tenga, cuando menos, una mínima relación con el ambiente exterior.

No obstante, esta condición relativa a la salud e higiene parecen evidentes en la actualidad de nuestras edificaciones y, de nuevo, la disciplina parecía quedar relegada a la pasividad en medio de la crisis ocasionada por la pandemia. En el marco de la emergencia sanitaria, surgía en los medios de comunicación algún nuevo alarde técnico sobre el sistema de habitaciones de cuidados intensivos mejor diseñadas o se discutía sobre la posibilidad de expandir centros hospitalarios en infraestructuras destinadas para otros fines (estadios, centros de eventos, colegios, entre otros). Pero, más allá de lo anterior, la arquitectura parecía constituirse no como un campo del conocimiento, sino como una suerte de plano secundario (y necesario) en la gran imagen que configuraba la tragedia de la enfermedad.

Ante esta condición, la lectura interdisciplinar se hacía fundamental y surgieron preguntas, ya no restringidas al campo de lo arquitectónico, sino enfocadas al estudio del espacio en sí, como concepto ampliado. Es decir, no pensar en las edificaciones como el asunto central en el marco de la propagación del virus, sino como un elemento que requiere un análisis espacial en función de una pregunta específica; en este caso, cómo el espacio podría contribuir a prevenir y/o disminuir el número de contagios entre individuos.

Bajo esta perspectiva, entender la naturaleza espacial del COVID-19 permitía abordar su complejidad en diferentes escalas. Si se piensa de modo general, un virus no es más que un conjunto de entidades en un espacio microscópico que buscan la manera de replicarse en una nueva entidad de mayor escala. Para garantizar su replicabilidad y supervivencia requieren de un medio, un “vacío”, y su expulsión de un individuo a otro a través de diminutas partículas volátiles en el aire.

Comprendiendo que pensar el espacio con abstracciones similares no era suficiente, el grupo académico indagó alrededor de teorías que tuvieran que ver con el análisis espacial en el ambiente construido y que, además, pudieran devenir en una suerte de resultado práctico para mitigar los efectos del virus durante los confinamientos. De esta manera se hizo un estudio de la sintaxis espacial, teoría concebida por Bernard Hillier y Julianne Hanson como una herramienta para que los arquitectos pudieran simular los posibles efectos socioculturales de sus diseños y tomar decisiones basadas en predicciones conductuales de la población (Bafna 2003). Tomando su acepción como analogía de la sintaxis lingüística, que estudia las relaciones de ordenamiento, jerarquía y relaciones de las palabras en oraciones o discursos, la sintaxis espacial consiste en el estudio de las formas en las que se vinculan y organizan los espacios de un conjunto arquitectónico, tratando de inferir aquellos aspectos de la estructuración social que pudieron influir en su diseño (Bermejo 2009), lo que permite, además, analizar las posibilidades, restricciones o transformaciones del espacio a partir de los usos o apropiaciones sociales (Dursun 2007).

En otras palabras, la sintaxis espacial permite representar la jerarquía de los espacios de determinada edificación, caracterizar la relación entre espacialidades y realizar simulaciones sobre el comportamiento social a partir de mapas de convergencia, que identifican nodos a través del trazo de líneas axiales entre espacialidades; gráficos de accesibilidad orientados a la representación de jerarquías y conexiones dentro de un edificio; y los gráficos de visibilidad de relaciones visuales entre los espacios. Los diagramas para la comprensión espacial descritos se complementan con índices de valoración numérica y compilación de datos estadísticos (Bermejo 2009).

A grandes rasgos, la teoría de la sintaxis espacial consiste en la búsqueda de predicciones del comportamiento humano en diferentes espacios y sirve para analizar las dinámicas en múltiples escalas, desde un pequeño local hasta ciudades enteras. Si bien la teoría ya ha sido ampliamente desarrollada y difundida, además de contar con una sólida producción académica, la hipótesis que dio lugar al presente proyecto es que el análisis sintáctico del espacio podría permitir una disminución del riesgo de contagios entre determinados individuos, en la medida en que no se les impondría toda la responsabilidad del aislamiento a los grupos humanos, sino que, a través de mínimos cambios o toma de decisiones en cuanto a la configuración espacial de determinadas edificaciones, se podría disminuir, natural o intuitivamente, el contacto físico y cortar de ese modo la cadena de transmisión entre determinados grupos.

Para ejemplificar esto, la Figura 1 presenta tres plantas, con accesos diferenciados entre sí en la primera fila, el espacio vacío en la segunda y el esquema de nodos de cada espacio diferenciado a través de letras en la tercera. En la primera columna se ve que el espacio C es el único que tiene acceso al exterior y se configura como la centralidad que permite distribuir los otros habitáculos. En la segunda columna se ven dos entradas paralelas en G y H y, a partir de ahí, se distribuyen en otros habitáculos que tienen en su mayoría un doble acceso. Y, finalmente, en la tercera columna se tiene una planta con cinco accesos al exterior y con varios de los habitáculos vinculados entre sí, lo que permite un acceso más libre entre la mayoría de los habitáculos. En este esquema, un espacio con condiciones similares puede tener configuraciones espaciales sumamente diferenciadas, con varios espacios con mayor profundidad, más o menos accesibles, e incluso se podría suponer que algunos aseguran más la privacidad o la seguridad y otros son más “vulnerables” al exterior.

Esquema ejemplar de mapa de grafos convexos de sintaxis espacial.

Figura 1: Esquema ejemplar de mapa de grafos convexos de sintaxis espacial.

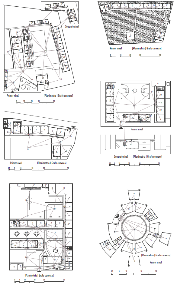
De este modo, solo uno de los esquemas básicos de la sintaxis espacial permite comprender dónde transitarían más personas y qué puntos son absolutamente esenciales para la circulación, que serían los lugares más propensos al contagio. Si bien esta esquematización es bastante intuitiva, cuando las espacialidades o edificaciones son más complejas, resulta menos evidente la relación del espacio con el comportamiento humano y, por tanto, las predicciones requieren de análisis más avanzados. En la Figura 2 se puede ver la planta de un colegio y su estructura espacial expresada en nodos.

Planimetría de institución educativa y mapa de grafos convexos justificados.

Figura 2: Planimetría de institución educativa y mapa de grafos convexos justificados.

En este caso, que fue el primer piloto de análisis, se pudo ver toda la complejidad que una infraestructura escolar, más o menos estándar, puede encerrar. Del mismo modo, se logró vislumbrar las posibilidades prácticas de convertir la teoría de la sintaxis espacial en una metodología para la prevención o mitigación de los efectos del contagio por el virus. Por ejemplo, entender que el colegio podía dividirse en tres bloques diferenciados con accesos que no se relacionaran entre sí, lo que garantizaría la máxima ocupación posible durante el periodo de alternancia, cerrando la actividad de la institución solo en grados diferenciados. Dado que el colegio podía dividirse de forma tal que tres bloques constituyeran casi que edificaciones independientes, el hallazgo de un caso positivo en un bloque no implicaba un cierre en el otro, ya que no habría “contacto espacial” entre los núcleos.

Este primer piloto permitió además enfocar el trabajo investigativo en la apremiante necesidad del retorno presencial a clases por parte de los estudiantes de primaria y secundaria, por los riesgos de deserción cada vez mayores, y con ello, enfocarse en problemáticas para el futuro que hoy son difíciles de vislumbrar, pero que pueden incluir un aumento en la pobreza multidimensional, los niveles de conflictividad social y los problemas de salud mental, entre otros.

Tomando como punto de partida que la sintaxis espacial, más allá de ser una teoría de interés, se constituye como una metodología de aplicación en diversos campos, esta investigación estableció lineamientos para instrumentalizarla y aplicar sus métodos en el contexto local, abordando la problemática del riesgo de contagio por COVID-19 en instituciones educativas del Urabá antioqueño en Colombia y con miras a un posible mejoramiento de los protocolos de bioseguridad exigidos por el Ministerio de Educación Nacional ante el COVID-19 o cualquier otra enfermedad transmisible que afecte los espacios educativos en el futuro. En este contexto de exploraciones conceptuales y prácticas, surgió el proyecto que nos convoca. La elección del Urabá como laboratorio idóneo tuvo que ver con la disposición de las comunidades, particularmente del Capítulo Urabá de la Universidad de Antioquia y la Secretaría de Educación del municipio de Apartadó, que no solo permitieron el proceso, sino que además autorizaron el análisis y se constituyeron en apoyo invaluable para la investigación.

En un artículo de The New York Times titulado “How Pandemics End”, desarrollado por la editora de ciencia y medicina Gina Kolata, se explica que históricamente las pandemias tienen dos tipos de finales. El primero se refiere al final médico, que ocurre cuando las tasas de contagio y mortalidad se reducen lo suficiente para descartar nuevos brotes, y el segundo hace referencia a un final “social”, que tiene lugar cuando el miedo al virus disminuye en la población y se aprende a convivir con la enfermedad (Kolata 2020). En consonancia con lo anterior, diferentes medios de difusión científica, como The Lancet, The New Journal of English Medicine o la revista Science, advirtieron sobre la incertidumbre del final de la pandemia y las dificultades asociadas a la distribución de las vacunas y predijeron que el riesgo de contagio podría permanecer hasta finales de 2022 como mínimo (Kissler et ál. 2020).

En consecuencia, la contingencia global causada por la pandemia de COVID-19 llevaba más de dos años y se requería adoptar medidas que permitieran mitigar los efectos negativos y el riesgo de contagio en la población, así como una evaluación de estrategias que permitieran una coexistencia con el virus y el desarrollo de actividades en la popularmente denominada “nueva normalidad”. Con esa perspectiva, esta investigación aporta instrumentos conceptuales y metodológicos que, guiados por la sintaxis espacial, posibilitan nuevos mecanismos de prevención de la enfermedad a través de estrategias de organización, diseño y señalética espacial en instituciones educativas, como un aporte a la resolución de la problemática descrita.

Según lineamientos del Ministerio de Educación Nacional, el regreso a clases y actividades académicas estaba previsto para iniciar a finales de 2020. No obstante, con la realización de algunos pilotos, no hubo suficiente claridad para un adecuado regreso y las directrices del ministerio presentan ambigüedades que tomaron varios meses del año 2021 en concretarse. Estos lineamientos implicaron un trabajo mancomunado de la comunidad académica, agentes del Estado y personal de la salud para garantizar el cumplimiento de los protocolos de bioseguridad y controlar la propagación del virus.

En tal contexto, esta propuesta se presentó como una oportunidad para un eventual mejoramiento de los protocolos a través de la aplicación de métodos de sintaxis espacial que garantizaran el distanciamiento social y generaran en la población cambios de carácter cultural en el largo plazo, expresados en las formas de transitar y ocupar los espacios. El proyecto también representó una oportunidad para evaluar la replicabilidad en contextos similares, como otros campus universitarios o edificaciones de carácter educativo cuya tipología (de claustro, bloque, atrio, entre otras) comparta características con edificios de más de 21 instituciones educativas analizadas. Por lo anterior, no se trató de la adopción de medidas paralelas a las establecidas por el gobierno nacional, sino de la producción de insumos teóricos que las fortalecieran en la dimensión científica.

Dados los tiempos y limitaciones producto de la pandemia, esta propuesta se articuló a los lineamientos sobre estructura político-administrativa que acogieron las instituciones educativas para retomar actividades presenciales y procuró aportar en los campos disciplinares de la arquitectura, el diseño, el urbanismo y la construcción con nuevas estrategias que tuvieran por objetivo reducir el riesgo de contagio por COVID-19 en las comunidades académicas.

Sumado a lo anterior, la propuesta contribuyó a la mitigación de la problemática a nivel regional e hizo aportes de carácter científico, cuya difusión permite situar el campo de la arquitectura y áreas afines como disciplinas que pueden articularse en la trans e interdisciplinariedad en momentos de crisis. En conclusión, esta propuesta respondió a la oportunidad de probar y mostrar, mediante la sintaxis espacial, nuevas metodologías para la disminución de contagios por COVID-19 en las instituciones educativas del Urabá antioqueño.

Contexto del proyecto

Este proyecto se desarrolló en la subregión geográfica del Urabá antioqueño, específicamente en la zona rural y urbana del municipio de Apartadó, región que se conoce también como Urabá central y hace parte de un circuito más amplio, junto a los municipios de Carepa, Chigorodó y Turbo. Históricamente, la región ha sufrido la violencia derivada del conflicto armado en Colombia y es tristemente célebre por las masacres que tuvieron lugar en sus territorios. Sumado a lo anterior, su economía se basa en la agricultura extensiva y el monocultivo de banano, por lo que los procesos de movilidad social son sumamente complejos, dada la falta de oportunidades que ofrecería el dinamismo de otros sectores económicos.

En este contexto, y aunado con los objetivos que justifican este proyecto, el rezago escolar, como indicador de pobreza multidimensional, establece que en la región de Urabá la relación entre la edad de niños y jóvenes en relación con el grado de escolaridad se ubica solo entre 20 % y 30 %, según cifras del Departamento Administrativo Nacional de Estadística (DANE). Lo anterior implica que la mayoría de los niños, niñas y adolescentes realizarían otro tipo de actividades diferentes a la formación primaria y secundaria (DANE 2019).

Según el Laboratorio de Economía de la Educación (LEE) de la Pontificia Universidad Javeriana, menos de la mitad de la población en primaria, secundaria y media de establecimientos públicos tiene acceso a internet y tiene computador, lo que sin duda imposibilitó que todos los niños, niñas y adolescentes continuaran sus estudios y pudieran seguir su proceso de formación. Aunado a lo anterior, la pandemia trajo consigo una crisis económica en la que miles de familias perdieron sus trabajos. Por lo tanto, este contexto era un caldo de cultivo para el incremento del trabajo infantil y el trabajo latente (LEE 2020). En consecuencia, la pandemia generó las condiciones para la agudización y profundización de problemáticas que afectaron a los niños, niñas y adolescentes, como el consumo de sustancias psicoactivas, el embarazo adolescente, el reclutamiento forzado, la explotación sexual, entre otras comunes en la región de Urabá y, en general, en el contexto rural nacional.

En este sentido, ante la contingencia, la mayoría de los colegios urbanos y rurales de Urabá no lograron implementar el modelo de educación virtual, dado que el grueso de la población estudiantil no contaba con herramientas o conectividad a internet y algunos debían ir a las instituciones en lapsos superiores a las dos semanas para recoger las guías que dejaban los docentes y tener un proceso de aprendizaje casi unipersonal (Cortés 2020). Cabe anotar que la escolaridad de los padres de familia suele ser apenas incipiente y un amplio porcentaje de la población rural solo terminó la primaria, lo que dificulta un apoyo pedagógico desde los hogares.

Adicionalmente, la infraestructura institucional de la región también es precaria y, según fuentes del DANE, en los colegios públicos hay una media de 30 estudiantes por aula de clase, lo que dificulta la aplicación de procesos de alternancia según los lineamientos del Ministerio de Educación Nacional. Una dificultad adicional para el acceso a la educación vino de que la comunicación celular y digital depende de la ubicación geográfica y proximidad de las veredas y corregimientos con los núcleos urbanos (DANE 2019).

En definitiva, al no contar la región con herramientas o estrategias que permitieran continuar con la modalidad virtual, se requería con urgencia de metodologías que permitieran el regreso presencial a las clases. Estas problemáticas, asociadas a la ausencia de capacidad instalada para atender los retos educativos que supuso la pandemia, deben abordarse multidimensionalmente, lo que implica tomar decisiones políticas, el mejoramiento de la infraestructura física y tecnológica y un diagnóstico permanente de las dificultades que presenten los estudiantes, particularmente lo de las instituciones educativas públicas de la región.

Metodología

Indagaciones preliminares

La metodología empleada en el proyecto surgió de una revisión de fuentes que permitieron construir un marco teórico cercano a las hipótesis planteadas en lo que respecta a la relación entre la configuración espacial y los riesgos de contagio de la enfermedad. Sin embargo, dado que la teoría de la sintaxis espacial surgió en la segunda mitad del siglo XX, no era posible establecer relaciones entre el campo de análisis y la aplicación en un escenario de pandemia, lo que dificultó la elaboración del estado del arte, por la novedad de las circunstancias y la relación interdisciplinar propuesta con la arquitectura. En este sentido, las investigaciones y estudios consultados resultaron ser la antesala para el diagnóstico y análisis en campo de la infraestructura física de las instituciones educativas, por lo que los estudios previos marcaron el horizonte de las posibilidades de análisis.

Según la teoría contemporánea (Bermejo 2009), el espacio ya no es solo una cualidad de la realidad física, sino que se convierte en una construcción cultural. De esta forma, la arquitectura y el urbanismo no solo tienen la capacidad de producir espacio, pues lo hace también quien habita ese entorno o lugar. Diferentes escuelas de pensamiento de antropólogos, sociólogos y filósofos han desarrollado modelos teóricos para analizar los mismos valores sociales o culturales que se les dan a los espacios arquitectónicos. En este sentido, la sintaxis espacial se destaca como una herramienta metodológica que permite analizar la conexión, integración y jerarquía de los espacios partiendo del reconocimiento de las formas propias de cada cultura para recorrer y significar lugares.

En consecuencia, la sintaxis espacial puede definirse como un sistema de análisis que explora la relación entre las sociedades humanas y el espacio mediante una teoría general de la estructura espacial habitada, en todas sus formas: desde el edificio hasta el asentamiento o el paisaje (Bafna 2003). De igual manera, como punto de partida del análisis sintáctico espacial, destaca el reconocimiento de que las sociedades humanas utilizan el espacio como un recurso clave y necesario para organizarse y que, de igual manera, es posible identificar patrones de comportamiento que se pueden asociar con ciertas características físicas de los espacios.

Desde los aportes del investigador Saif Haq (2019), se reconoce que la forma particular en que los seres humanos nos desplazamos a través de un lugar puede ser comprendida y representada mediante las técnicas de análisis de la sintaxis espacial:

en otras palabras, por donde caminamos es lo que vemos y por donde hemos caminado es como entendemos el entorno. Hacia dónde caminamos es una función de lo que atravesamos, es decir, puertas y aperturas, y todo esto está pre-determinado por el diseñador. La sintaxis espacial es la teoría que reconoce el significado multifacético de estas experiencias y ha desarrollado una metodología robusta para medir los diseños desde este punto de vista. (Haq 2019, 12)

La atención que diferentes campos de conocimiento (diferentes a la epidemiología y la medicina) pusieron en la reciente pandemia global producida por el virus Sars-Cov-2 evidencia la necesidad de incluir enfoques inter y transdisciplinares que complementen las medidas de protección sanitaria. Para la arquitectura y el estudio del ambiente construido, la configuración de los espacios ha cobrado especial interés. Diversos investigadores (Dietz et ál. 2020; Li y Psarra 2020; Megahed y Ghoneim 2020; Salama 2020) concuerdan en afirmar que en ciertas sociedades occidentales, como la nuestra, se produce una tensión entre el tipo de espacios que diseñamos y materializamos y las condiciones sanitarias pertinentes para reducir el riesgo de contagio. En particular, Dietz et ál. expresan que

el análisis de la sintaxis espacial demuestra una relación entre la disposición espacial y los grados de conectividad, y se ha demostrado que se correlaciona con la abundancia y la diversidad de microbios en un espacio determinado. La comprensión de estos conceptos espaciales podría formar parte del proceso de adopción de decisiones sobre la aplicación de medidas de distanciamiento social, el grado de limitación de la densidad de ocupantes y el plazo de aplicación de las medidas. (2020, 9)

La investigación se sustentó en este enfoque conceptual, reconociendo que el cierre de los centros educativos durante la pandemia comporta graves problemas sociales en el mediano y largo plazo (Sheikh et ál. 2020). Para ello se acercó la producción de conocimiento científico en arquitectura a la materialización de estrategias tangibles y aplicables en comunidades vulnerables, para disminuir los riesgos de contagio y, a su vez, sostener los procesos formativos escolares.

Investigación aplicada

Según lo anterior, partiendo de una tipología de investigación aplicada, esta propuesta emplea un método experimental con formulación de hipótesis en ambientes controlados de las instituciones educativas del Urabá antioqueño, derivadas de la exploración conceptual de la sintaxis espacial, como estrategia para la disminución de riesgo de contagio por COVID-19. Este proyecto presenta entonces un enfoque mixto, como estrategia para la recopilación, procesamiento y sistematización de la información.

Dada la novedad de la contingencia global, la metodología planteada partió de la revisión de literatura científica sobre los instrumentos derivados de la sintaxis espacial aplicada a entornos educativos y rurales, con el fin de generar cambios culturales en los modos de transitar y ocupar los lugares. Posteriormente, para el cumplimiento de los objetivos del proyecto, se realizó la división metodológica en tres etapas, con actividades definidas cronológicamente y conectadas transversalmente a través del fortalecimiento de semilleros y procesos formativos en investigación para estudiantes. En primer lugar, la etapa de indagaciones preliminares, que permitió la elaboración de marco teórico y un estado del arte para la formulación del proyecto y la conformación de líneas de investigación a través de la articulación de grupos de investigación y semilleros. Luego, la etapa de preparación y diagnóstico de las infraestructuras educativas durante las visitas de campo y los levantamientos planimétricos. Finalmente, la etapa de ejecución de los análisis sintácticos, caracterización de los estudios, realización de propuesta de señalética y difusión de resultados.

En total se realizaron levantamientos y actualizaciones planimétricas de 21 instituciones educativas urbanas y rurales del municipio de Apartadó, en Antioquia, lo que constituye aproximadamente el 45 % de la totalidad de instituciones públicas. Estos levantamientos se realizaron en un diálogo intersectorial entre la Secretaría de Educación del municipio, el Comité Universidad Empresa Estado Sociedad (CUEES) de Urabá y el equipo de investigadores, donde las entidades aportaron algunas planimetrías digitales, permitieron el ingreso a las instituciones y facilitaron los escenarios de concertación y difusión ante las comunidades.

Ya hechos el levantamiento y la actualización de las planimetrías, se procedió con la depuración de las líneas CAD para la asignación de espacios limpios de nomenclaturas y capas, lo que permitió organizar los archivos para ser procesados en el software de sintaxis espacial. El primero de ellos es DepthMapX2, del que se pueden importar archivos CAD y reconocer automáticamente la configuración espacial de las edificaciones (Pan, Bardhan y Jin 2021). Cabe anotar que este software es de código abierto (open source)3, por lo que constantemente está actualizándose en la página web de SpaceSyntax.

En la Figura 3 se aprecian algunos de los planos arquitectónicos de las instituciones, lo que implicó una depuración de capas y elementos, para facilitar los análisis de sintaxis espacial. En esta etapa se usó software CAD para toda la información planimétrica.

Los análisis que en DepthMapX comprendieron diferentes modelos de plano. En el primero de ellos se elaboraron los nodos para el sistema de grafos (Figura 4) y la posterior rectificación del sistema de grafos convexos, que convierte cada espacio en un nodo para poder relacionarlo con otros nodos en el sistema (Figura 5). Estos mapas del sistema de grafos permiten construir la estructura de la espacialidad y determinar cuáles espacios tienen indicadores más altos de profundidad respecto a la totalidad de un sistema (Saldarriaga 2016). En la Figura 4 se puede apreciar cómo la disposición de nodos en cada espacialidad puede rectificarse y arrojar nueva información:

Posterior a la rectificación de los grafos, se realizaron mapas de conectividad (Figura 6), donde se señalan con colores los espacios más conectados en relación con todo el sistema, es decir, entre las diferentes espacialidades que configuran una institución educativa. Este mapa permite comprender, atendiendo a las hipótesis de la investigación, cuáles son las estancias que presentan mayor probabilidad de tener alto tránsito de poblaciones y cuáles lugares pueden presentar características topológicas singulares (Grau 2015):

Aunado con el mapa de grafos rectificado, el mapa de integración de la Figura 7 muestra qué tan integrada está una espacialidad con la totalidad del sistema (Kishimoto y Taguchi 2014; Kareem y Baper 2021). Se diferencia del mapa de conectividad en que en este se contemplan los niveles de profundidad y, a través de la noción de asimetría relativa, se mide cuáles son los lugares más centrales, en términos de distancias relativas de profundidad (Kim y Penn 2004). En este caso, pueden existir variaciones significativas con el mapa de conectividad que permiten comprender cuántos nodos espaciales deben transitarse para llegar a determinados destinos (Smit 2022). Por ejemplo, si un estudiante requiere ingresar a un aula, el espacio de un corredor central puede presentar mayores niveles de integración, si se conectan tanto con el exterior de la institución como con el interior de las aulas, como ilustra la Figura 7.

También se elaboraron mapas de elección (Figura 8), que determinan, en términos cuantitativos y según la relación con el ítem de integración, los niveles de elección de los espacios dentro del sistema. Esta elección va de 0 a 1, donde los espacios más cercanos a 1 serán los que presentarán un mayor coeficiente de elección por parte de la población. Teniendo en cuenta que la sintaxis espacial surgió de la disciplina geográfica para comprender los modos de habitar los espacios por parte de los individuos (Jiménez y Verduzco 2010; Yao et ál. 2021), este mapa permite aproximarse a los lugares que resultarían elegidos por sobre otros para establecerse dentro del sistema.

Otro de los mapas generados fue el de axialidad, que se divide en los mapas de axialidad de integración (Figura 9) y de axialidad de elección (Figura 10), donde se trazan las rutas más cortas entre diferentes nodos de espacialidades en línea recta, por lo que el software define múltiples líneas simultáneamente que determinan algunos de los puntos críticos de tránsitos posibles en todo el sistema, a partir de los mapas anteriores de integración y axialidad. Es decir, interpreta las conexiones en línea recta y posibilita una lectura ampliada (Long, Baran y Moore 2007; Yao et ál. 2021). De este modo, la información de conexión entre espacialidades es aprovechada para el diagnóstico general de las edificaciones, así como las intersecciones entre ellas, como puede verse a continuación.

Por otra parte, a través del software de código abierto Isovists4, se generaron dos mapas de isovistas, diferenciados según la información de cada institución educativa. Estos mapas presentan una mayor complejidad (Li y Psarra 2020; Büyükşahin 2022) en cuanto a la lectura de los datos espaciales, pero requieren de una inserción en el sistema general de los análisis sintácticos mostrados previamente. El primer mapa es el de control, donde se calcula, según la disposición de millones de puntos dentro del sistema espacial, cuáles son los lugares que tienen mayor conectividad con otros y “controlan” los accesos a mayor cantidad de nodos, como se puede ver en la Figura 11.

El último mapa de isovistas es el de visibilidad (Figura 12), mediante el cual, usando el mismo sistema de disposición de puntos, se calcula cómo se relacionan los espacios, de acuerdo con los nodos y niveles de profundidad (Kareem y Baper 2021; Büyükşahin 2022) y, en este caso, con las aberturas de las edificaciones. Este mapa permite comprender qué espacios dentro del sistema resultan más visibles desde múltiples espacialidades de la misma institución educativa.

Resultados

Dada la complejidad de los análisis y el volumen de instituciones educativas, los archivos producto de la investigación superaron los 186 mapas, nueve por cada institución, por lo que en este artículo se muestra solo una pequeña fracción de los resultados gráficos que se obtuvieron. Así, en las siguientes imágenes que presenta una diagramación de diferentes instituciones educativas con algunos mapas realizados (Figura 13).

Partiendo de los análisis de sintaxis espacial descritos, se procedió con ejercicios de interpretación de la información para dar recomendaciones generales a las instituciones educativas, según las diferentes morfologías y dimensiones de las edificaciones. Los mapas de grafos convexos generales y rectificados posibilitaron comprender los diferentes niveles de profundidad y cómo se podrían realizar redistribuciones de algunas aulas para disminuir la cantidad de nodos por los cuales se debía transitar. En términos prácticos, esto implicaba una redistribución simple de las actividades académicas para que los estudiantes, profesores y administrativos de las instituciones pudieran evadir la mayor cantidad de puntos críticos posibles en el desarrollo de sus actividades y, de este modo, evitaran también la mayor cantidad de flujo posible de personas y mantuvieran el distanciamiento social adecuado (Failache, Katzkowicz y Machado 2020). Con base en los mapas de conectividad se establecieron parámetros temporales de modo que el tránsito obligado por algunos puntos de acceso a las aulas no convergiera en los mismos momentos para todos los grados escolares. Es decir, se buscó definir en qué momento del ingreso y la salida en los horarios escolares cada grupo debía transitar en un momento específico, para que no existiera riesgo de aumentar la confluencia en espacialidades limitadas.

Por su parte, los mapas de integración permitieron la redistribución de los grados escolares según el itinerario de ingreso y salida a las instituciones, definiendo cuáles grupos se encontraban en aulas con una asimetría relativa mayor y, por lo tanto, eran más susceptibles de tener que pasar por puntos críticos dentro del sistema. En lo que respecta a los mapas de axialidad, se analizaron los parámetros de manera conjunta con el mapa de control, dado que en la gran mayoría de los casos se encontró una correspondencia entre las intersecciones de las líneas axiales con los puntos que tenían mayor control sobre todo el sistema, por lo que se comprende que aquellos lugares que permiten las rutas más rápidas entre los nodos también eran similares a aquellos puntos que tenían mayor jerarquía de accesos en las instituciones (Li y Psarra 2020; Kareem y Baper 2021). Este dato no es menor, dado que, si asumimos que los individuos tienden a buscar los caminos más rápidos para ir de un lugar a otro (Li y Psarra 2020), hacer ligeros cambios en el sistema (cerrar una puerta, colocar mobiliario temporal o definir señaléticas, por ejemplo) podrían tener cambios culturales en la población que disminuyeran los riesgos de encuentro con otros individuos.

Los mapas o gráficos de elección permitieron ampliar el espectro considerando la sumatoria de la información y añadiendo una capa a los hallazgos de las configuraciones espaciales de los mapas anteriores. De este modo, se descubrió que, al hacer ligeros cambios en la distribución de las aulas y los espacios de tránsito, como los vestíbulos de acceso o los corredores, los indicadores de elección variaban significativamente. Por último, el mapa de visibilidad permitía situar las señaléticas y la información relativa a la prevención y el autocuidado en los lugares donde resultaran más visibles y donde pudieran anunciarse con mayor eficacia asuntos relativos a la emergencia sanitaria.

Surtidas las etapas de indagaciones preliminares, diagnósticos, análisis sintácticos, y como un proceso de apropiación social del conocimiento, se procedió a elaborar elementos visuales que pudieran constituir una nueva señalética para las instituciones educativas. Esta señalética usó los lineamientos de Ministerio de Educación Nacional para la prevención de la enfermedad y además sirvió como un primer instrumento para pensar en problemáticas distintas del riesgo de contagio, como el aumento en la deserción escolar en Colombia, superiores al 15 % respecto a la población total (Casas 2021). La señalética, los elementos visuales y las ilustraciones fruto de la investigación fueron producto del trabajo interdisciplinar entre diferentes miembros de la Facultad de Arquitectura de la Universidad Nacional de Colombia. Estos, a través de talleres de investigación formativa, plantearon opciones que complementaran los objetivos propuestos en el proyecto, como la inclusión de las artes visuales, como parte del proceso investigativo y de difusión ante las comunidades implicadas. En la Figura 14 se dan algunas de las ilustraciones realizadas.

Esta iniciativa no solo permitió la vinculación de estudiantes de diferentes campos del conocimiento, sino que también posibilitó la formulación de un nuevo proyecto de escalabilidad, cuyo objetivo es realizar diagnósticos integrales de la infraestructura física de las instituciones educativas para el diseño de nuevas actividades y estrategias mediante las cuales combatir el creciente fenómeno de la deserción. De este modo, uno de los principales resultados del proyecto, más allá de los productos técnicos y académicos, fue la constitución de un banco de propuestas en función de la sostenibilidad y sustentabilidad del proyecto hacia el futuro.

Discusión

Los resultados de esta investigación arrojaron principalmente un conjunto de planimetrías y análisis gráficos que permitieron un acercamiento a nuevas formas de comprensión del espacio arquitectónico, particularmente de infraestructuras educativas, con el objetivo de diseñar metodologías derivadas de la teoría de la sintaxis espacial. Estos análisis permitieron no solo establecer recomendaciones para la Secretaría de Educación del municipio de Apartadó, en lo relativo a la ocupación de las aulas y espacios destinados a la recreación, alimentación y ocio, sino también aterrizar teorías complejas para la resolución de problemáticas locales guiadas por el pragmatismo, es decir, la aplicación de una teoría transversal a la arquitectura, la geografía y el urbanismo en el campo de la transmisión de enfermedades y aprovechamiento de los espacios según las necesidades y las contingencias propias de un contexto determinado.

Los análisis gráficos derivados de esta investigación deben comprenderse en conjunto, por lo que una adecuada lectura e interpretación de los elementos que componen la sintaxis espacial no deben abordarse por separado, sino que constituyen un tejido de relaciones que aumenta la complejidad del estudio. En este sentido, un grafo convexo rectificado implica solo una dimensión de la profundidad espacial, pero los mapas de conectividad, integración, elección y axialidad complementan la información, que a simple vista podría resultar intuitiva, como pensar la ruta más corta en un circuito cualquiera, pero que, al situarnos en los análisis sintácticos, nos presenta resultados generalmente insospechados para el sentido común.

En cuanto a las particularidades, en la metodología se estableció que se abordaría cada institución educativa objeto de análisis de acuerdo con las mismas categorías analíticas establecidas por la sintaxis espacial. Por ello en las 21 instituciones se abordaron planimetrías de grafos convexos, planimetrías de mapas convexos rectificados, mapas de conectividad, mapas de integración, mapas de axialidad, mapas de integración, mapa de isovistas de control y mapas de visibilidad. Esto permitió no solo establecer parámetros que pudieran replicarse en distintas edificaciones, sino contrastar la información de cada una de ellas a partir de su singularidad tipológica, con miras a replicar los análisis en contextos educativos similares.

En la literatura académica, diferentes estudios plantean que la sintaxis espacial permite pensar en los modos de ocupación de los espacios desde una perspectiva que generalmente no se contempla en la fase de diseño arquitectónico (Bafna 2003; Dursun 2007; Büyükşahin 2022). Por lo anterior, derivar de la sintaxis espacial una metodología para abordar un problema complejo, como lo es la transmisión y mitigación de un virus, puede resultar de interés en escenarios futuros y ampliar los alcances de las diferentes categorías, para perseguir objetivos relativos a nuevas problemáticas contingentes. En esta misma línea, los estudios de Haq (2019) se acercan a los objetivos planteados por esta investigación, en la medida en que se aplica la teoría en función de recuperar la habitabilidad de un lugar y plantear escenarios de ocupación atendiendo a la forma como transitan los seres humanos (Haq 2019). Por su parte, los análisis de Yao et ál. (2021)contrastan elementos que parten de las configuraciones urbanas para determinar la relación entre los niveles socioeconómicos de una población y la vulnerabilidad de exposición ante el virus. Estos estudios se constituyen en insumos para el abordaje de la teoría y respaldan una de las hipótesis centrales de esta investigación, según la cual el espacio determina, posibilita o niega actuaciones y ello tiene serias implicaciones en la vida de las personas (Haq 2019; Li y Psarra 2020; Dietz et ál. 2020; Yao et ál. 2021; Kareem y Baper 2021).

En lo que respecta a documentos académicos que pudieran contradecir las hipótesis planteadas, no se han hallado alusiones a la sintaxis espacial que no estén en sintonía con los planteamientos descritos en los resultados. Esto puede deberse a dos situaciones: la primera de ellas es que la pandemia comenzó hace poco más de dos años y los estudios pueden seguir en fase de experimentación o consolidación, por lo que se requiere de más información para contrastar los resultados obtenidos por otros análisis que han validado y publicado sus investigaciones (Kareem y Baper 2021); la segunda puede relacionarse con el desconocimiento que existe de la teoría en otros campos del conocimiento que no sean la arquitectura, el urbanismo y la geografía, por lo que los artículos consultados para el marco teórico, estado del arte y discusión parten de hipótesis que resultan afirmativas, es decir, que se comprueban a partir de la aplicación teórica de la sintaxis espacial en contextos determinados.

Cabe anotar que esta investigación no solo planteó la aplicación teórica, sino que, a través de un proceso de transferencia del conocimiento a las comunidades educativas, se planteó el diseño y construcción de metodologías. Esto es, no solo entregar productos académicos, sino también realizar talleres de socialización y sensibilización de la teoría para que pueda ser replicada y desarrollada por actores externos al equipo de investigadores. Por su parte, la metodología no solo consistió en la elaboración de los análisis gráficos, sino en su interpretación y las recomendaciones para un retorno seguro a clases en las instituciones objeto de estudio.

Las limitaciones de la investigación incluyen haber restringido los análisis a 21 instituciones del municipio de Apartadó en Antioquia, y si bien algunas tipologías edilicias comparten características muy similares, se requieren más estudios que permitan plantear una replicabilidad en otras instituciones. Por otra parte, dada la novedad de la emergencia sanitaria global, esta investigación se encuentra limitada por la literatura académica relativa a la aplicación de la teoría de la sintaxis espacial en contextos de crisis, y ya que la teoría no resulta tan conocida, como las metodologías BIM o los instrumentos asociados a los Sistemas de Información Geográfica, solo se pudieron rastrear unas cuantas investigaciones publicadas entre 2021 y 2022 que aluden a la pandemia por COVID-19. Lógicamente, los otros estudios que se abordaron en este artículo fueron contextuales respecto al campo semántico y técnico que atañe a la teoría de la sintaxis espacial.

Planimetrías de instituciones educativas de Apartadó, sin las capas de análisis.

Figura 3: Planimetrías de instituciones educativas de Apartadó, sin las capas de análisis.

Distribución de los nodos de cada espacio para la elaboración del sistema de grafos en instituciones educativas de Apartadó de la Figura 3.

Figura 4: Distribución de los nodos de cada espacio para la elaboración del sistema de grafos en instituciones educativas de Apartadó de la Figura 3.

Datos: elaborado según lineamientos de la teoría de sintaxis espacial.

Gráfico del sistema de grafos convexo rectificado de instituciones educativas de Apartadó (Figuras 3 y 4).

Figura 5: Gráfico del sistema de grafos convexo rectificado de instituciones educativas de Apartadó (Figuras 3 y 4).

Datos: elaborado según lineamientos de la teoría de sintaxis espacial.

Mapa de conectividad de las instituciones educativas.

Figura 6: Mapa de conectividad de las instituciones educativas.

Datos: elaborado con el software DepthMapX 0.55b.

Mapa de integración de las instituciones educativas.

Figura 7: Mapa de integración de las instituciones educativas.

Datos: elaborado con el software DepthMapX 0.55b.

Mapa de elección de las instituciones educativas.

Figura 8: Mapa de elección de las instituciones educativas.

Datos: elaborado con el software DepthMapX 0.55b.

Mapa de axialidad de integración de las instituciones educativas.

Figura 9: Mapa de axialidad de integración de las instituciones educativas.

Datos: elaborado con el software DepthMapX 0.55b.

Mapa de axialidad de elección de las instituciones educativas.

Figura 10: Mapa de axialidad de elección de las instituciones educativas.

Datos: elaborado con el software DepthMapX 0.55b.

Mapa isovistas de control de las instituciones educativas.

Figura 11: Mapa isovistas de control de las instituciones educativas.

Datos: elaborado con el software Isovist 2.4.1.

Mapa isovistas de visibilidad de las instituciones educativas.

Figura 12: Mapa isovistas de visibilidad de las instituciones educativas.

Datos: elaborado con el software Isovist 2.4.1.

Collage de mapas de isovistas de visibilidad de diferentes instituciones educativas.

Figura 13: Collage de mapas de isovistas de visibilidad de diferentes instituciones educativas.

Datos: elaborado con el software OpenSource Isovist 2.4.1.

Ilustraciones de posibilidades de señaléticas y estrategias de regreso a la presencialidad.

Figura 14: Ilustraciones de posibilidades de señaléticas y estrategias de regreso a la presencialidad.

Datos: Valentina Arango Bedoya, estudiante auxiliar del proyecto de investigación.

Conclusiones

Finalmente, esta investigación no pretende ser una defensa de la teoría de la sintaxis espacial como la única alternativa para comprender la arquitectura y las problemáticas contingentes que puedan surgir, sino más bien demostrar que la disciplina arquitectónica tiene elementos por aportar en medio de las crisis y que pensar el espacio merece la pena, independientemente de qué situación estemos viviendo o padeciendo. Pensar el espacio debe entonces ir más allá del planteamiento de los lugares comunes a los que estamos habituados en la academia, mientras que las nuevas tecnologías, las teorías que surgen de otros campos del conocimiento o incluso la capacidad instalada de las comunidades que conocen sus propios contextos pueden resultar fundamentales para abordar problemas complejos que no dejarán de emerger. En Colombia, la educación actualmente sufre las consecuencias derivadas de las medidas gubernamentales tomadas durante la pandemia. Si bien ya el esquema nacional de vacunación supera las expectativas y la declaratoria de la emergencia se suspendió, el terreno perdido en términos de acceso a la educación y de movilidad social es inmenso, y todavía no se pueden medir las consecuencias que tendrá en el futuro, pero las cifras no son alentadoras (Rodríguez 2020).

Por lo anterior, si bien esta propuesta respondió a la necesidad de mitigar el riesgo de contagio de COVID-19 y es extrapolable a enfermedades de transmisión análogas, el principal reto que derivó de esta investigación es la creación de estrategias que permitan afrontar los altos niveles de deserción que tiene el país en la actualidad y, particularmente, la región del Urabá antioqueño, que históricamente ha padecido los efectos del conflicto armado y la inequidad social. En este sentido, las metodologías diseñadas permitieron formular una nueva iniciativa de extensión solidaria que se encuentra en curso y que permitirá una aplicación ampliada de los análisis de sintaxis espacial para el abordaje de nuevas problemáticas. En conclusión, la sintaxis espacial se constituye como una teoría aplicable a múltiples escenarios que resultarían fortalecidos a través del diálogo entre disciplinas, comunidades, actores que toman decisiones sobre los territorios e investigadores que busquen la sostenibilidad y sustentabilidad de las ideas y los proyectos.

Acknowledgements

Agradecimientos

A la Secretaría de Educación de Apartadó, en cabeza de Eleazar Quejada Palma, por su disposición, apoyo y confianza para realizar la investigación en las instituciones educativas. A Carlos Pinilla Gallego, presidente del CUEES, Capítulo Urabá, por los escenarios de difusión y el interés manifiesto. A Fidel Nieto Plata, por la gestión y respaldo desde la formulación de la iniciativa y el trabajo de campo. A Valentina Arango Bedoya y Andrea Osorio Chalarcá, estudiantes de Artes Plásticas y Construcción, respectivamente, por su arduo trabajo y la calidad de sus productos, fundamentales para esta investigación.

Referencias

  1. Bafna, Sonit. 2003. “Space Syntax: A Brief Introduction to Its Logic and Analytical Techniques”. Environment and Behavior 35 (1): 17-29. https://doi.org/10.1177/0013916502238863 [URL] 🠔
  2. Bermejo Tirado, Jesús. 2009. “Leyendo los espacios: una aproximación crítica a la sintaxis espacial como herramienta de análisis arqueológico”. Arqueología de la Arquitectura, no. 6, 47-62. https://doi.org/10.3989/arqarqt.2009.09004 [URL] 🠔
  3. Büyükşahin, Süheyla. 2022. “Effects of COVID-19 Pandemic on Spatial Preferences and Usage Habits of Users in Shopping Malls and Its Relation with Circulation Layout”. Ain Shams Engineering Journal 14 (2): 101838. https://doi.org/10.1016/j.asej.2022.101838 [URL] 🠔
  4. Casas, Paula. 2021. “Lo que no revelan las cifras de inasistencia escolar del DANE”. El Espectador.com, 3 de septiembre, 2021. https://www.elespectador.com/educacion/lo-que-no-revelan-las-cifras-de-inasistencia-escolar-del-dane/ [URL] 🠔
  5. Cortés Bernal, Valeria. 2020. “La lucha de un colegio de Urabá por implementar las clases virtuales”. El Espectador.com, 14 de julio, 2020. https://www.elespectador.com/tecnologia/la-lucha-de-un-colegio-de-uraba-por-implementar-las-clases-virtuales-article/ [URL] 🠔
  6. DANE (Departamento Administrativo Nacional de Estadística). 2019. “Educación formal - 2019”. Consultado el 15 de julio de 2022. http://microdatos.dane.gov.co/index.php/catalog/669#page=export-metadata&tab=study-desc [URL] 🠔
  7. Dietz, Leslie, Patrick F. Horve, David A. Coil, Mark Fretz, Jonathan A. Eisen y Kevin Van Den Wymelenberg. 2020. “2019 Novel Coronavirus (COVID-19) Pandemic: Built Environment Considerations To Reduce Transmission”. mSystems 5 (2): 1-13. https://doi.org/10.1128/mSystems.00245-20 [URL] 🠔
  8. Dursun, Pelin. 2007. “Space Syntax in Architectural Design”. Proceedings, 6th International Space Syntax Symposium, del 11 al 15 de junio, Istanbul. 🠔
  9. Failache, Eliza, Noemí Katzkowicz y Alina Machado. 2020. “La educación en tiempos de pandemia y el día después. El caso de Uruguay ”. Revista Internacional de Educación para la Justicia Social 9 (3). 🠔
  10. Grau Mira, Ignasi. 2015. “Sintaxis espacial en el oppidum ibérico. Reflexiones sobre los modelos espaciales y sociales”. Arqueologia de la Arquitectura, no. 12, e032. https://doi.org/10.3989/arq.arqt.2015.123 [URL] 🠔
  11. Haq, Saif. 2019. “Where We Walk Is What We See: Foundational Concepts and Analytical Techniques of Space Syntax”. Health Environments Research and Design Journal 12 (1): 11-25. https://doi.org/10.1177/1937586718812436 [URL] 🠔
  12. Jiménez Rosas, Eric Orlando y Gemma Luz Sylvia Verduzco Chirino. 2010. “La sintaxis espacial de la vida doméstica. Una comparación urbano-rural”. Revista de Investigación Científica en Arquitectura 4 (2): 45-52. 🠔
  13. Kareem, Siham y Salahaddin Baper. 2021. “How to Limit the Spread of COVID-19 in Residential Buildings: Erbil City As A Case Study”. Design Engineering (Toronto) 2021 (Julio): 2635-2647. 🠔
  14. Kim, Young Ook y Alan Penn. 2004. “Linking the Spatial Syntax of Cognitive Maps to the Spatial Syntax of the Environment”. Environment and Behavior 36 (4): 483-504. https://doi.org/10.1177/0013916503261384 [URL] 🠔
  15. Kishimoto, Tatsuya y Mayuko Taguchi. 2014. “Spatial Configuration of Japanese Elementary Schools: Analyses by the Space Syntax and Evaluation by School Teachers”. Journal of Asian Architecture and Building Engineering 13 (2): 373-380. https://doi.org/10.3130/jaabe.13.373 [URL] 🠔
  16. Kissler, Stephen M., Christine Tedijanto, Edward Goldstein, Yonatan H. Grad y Marc Lipsitch. 2020. “Projecting the Transmission Dynamics of Sars-Cov-2 Through the Postpandemic Period”. Science 368 (6493): 860-68. https://doi.org/10.1126/science.abb5793 [URL] 🠔
  17. Kolata, Gina. 2020. “How Pandemics End”. 10 de mayo de 2020. https://www.nytimes.com/2020/05/10/health/coronavirus-plague-pandemic-history.html [URL] 🠔
  18. LEE (Laboratorio de Economía de la Educación). 2020. “Otros riesgos asociados al cierre de colegios durante la pandemia”. Informe Análisis Estadístico Lee no. 23, 30 de septiembre de 2020. Consultado el 15 de julio de 2022. https://lee.javeriana.edu.co/-/lee-informe-23 [URL] 🠔
  19. Li, Chenyang y Sophia Psarra. 2020. “Building Pandemic Resilience in Design: Space and Movement in Art Museums During COVID-19”. SocArXiv. 2 octubre https://doi.org/10.31235/osf.io/a5c7p [URL] 🠔
  20. Long, Yixiang, Perver K. Baran y Robin Moore. 2007. “The Role of Space Syntax in Spatial Cognition: Evidence From Urban China”. Proceedings, 6th International Space Syntax Symposium, del 11 al 15 de junio, Istanbul. 🠔
  21. Megahed, Naglaa A. y Ehab M. Ghoneim. 2020. “Antivirus-Built Environment: Lessons Learned From COVID-19 Pandemic”. Sustainable Cities and Society 61 (Octubre): 102350. https://doi.org/10.1016/j.scs.2020.102350 [URL] 🠔
  22. Pan, Jiayu, Ronita Bardhan y Ying Jin. 2021. “Spatial Distributive Effects of Public Green Space and COVID-19 Infection in London”. Urban Forestry and Urban Greening 62 (Julio): 127182. https://doi.org/10.1016/j.ufug.2021.127182 [URL] 🠔
  23. Rodríguez Pinzón, Erika. 2020. “Colombia: impacto económico, social y político de la COVID-19”. Análisis Carolina, 24: 1-14. https://doi.org/https://doi.org/10.33960/AC_24.2020 [URL] 🠔
  24. Salama, Ashraf M. 2020. “Coronavirus Questions That Will Not Go Away: Interrogating Urban and Socio-Spatial Implications of COVID-19 Measures”. Emerald Open Research 2: 14. https://doi.org/10.35241/emeraldopenres.13561.1 [URL] 🠔
  25. Saldarriaga, Juan Alejandro. 2016. “Diagrama y arquitectura. La sintaxis espacial en el Carpenter Center for the Visual Arts”. En: Le Corbusier, 50 años después, 2028-2043. Valencia: Editorial Universitat Politècnica de València. https://doi.org/10.4995/LC2015.2015.888 [URL] 🠔
  26. Sheikh, Aziz, Asiyah Sheikh, Zakariya Sheikh y Sangeeta Dhami. 2020. “Reopening Schools After the COVID-19 Lockdown”. Journal of Global Health 10 (1): 1-3. https://doi.org/10.7189/JOGH.10.010376 [URL] 🠔
  27. Smit, Jasper Laurens. 2022. “Space Syntax : Exploring the applicability of sociospatial Theory During the COVID-19 Pandemic Evidence From Groningen”. Tesis de maestría Environmental & Infrastructure Planning, Universidad de Groninga, Groninga. 🠔
  28. Yao, Yepeng, Wenzhong Shi, Anshu Zhang, Zhewei Liu y Shuli Luo. 2021. “Examining the Diffusion of Coronavirus Disease 2019 Cases in A Metropolis: A Space Syntax Approach”. International Journal of Health Geographics 20 (1): 1-14. https://doi.org/10.1186/s12942-021-00270-4 [URL] 🠔
López-Garnica, Pablo; Bedoya Montoya, Carlos Mauricio; Molina Flórez, Emanuel; Benavides Uribe, Ricardo José. 2023. “Sintaxis espacial: metodología de análisis espacial para la prevención de COVID-19 en instituciones educativas del Urabá antioqueño”. Cuadernos de Geografía: Revista Colombiana de Geografía 32 (2): 382-408. https://doi.org/10.15446/rcdg.v32n2.103990
Estas medidas fueron adoptadas en casi todos los países afectados por la pandemia, con leves variaciones.
Software empleado por la oficina de SpaceSyntax en Londres. Para más información se puede consultar su página web: https://spacesyntax.com/.
Este tipo de códigos permite a los usuarios no solo utilizar el programa de manera gratuita, sino también acceder al código fuente y adaptar nuevas funcionalidades.
Software empleado por la oficina de SpaceSyntax en Londres. Para más información se puede consultar su página web: https://spacesyntax.com/.
Este proyecto fue financiado con recursos del Fondo Nacional de Extensión Solidaria en el marco de la Convocatoria Nacional de Extensión Solidaria 2021 de la Universidad Nacional de Colombia.

Pablo López-Garnica

, candidato a magíster en Estética y docente del Centro de Educación Continua y Permanente de la Universidad Nacional de Colombia. Investigador de Extensión Solidaria desde el año 2017. Miembro del Grupo de Investigación en Construcción y coordinador del grupo de investigación Seminario de Estudios Espaciales. Pertenece a la Red Internacional sobre problemas, pensamiento y sistemas complejos (InComplex) Sus líneas de investigación abordan el espacio virtual, la arquitectura y el paisaje.

Carlos Mauricio Bedoya Montoya

, constructor y magíster en Hábitat de la Universidad Nacional de Colombia. Doctor en Proyectos de la Universidad Internacional Iberoamericana sede México. Profesor Asociado de la Escuela de Construcción de la Universidad Nacional de Colombia sede Medellín. Director de la línea de investigación en Construcción Sostenible. Autor de los libros “Construcción Sostenible. Para volver al camino”; y “Del residuo al material. Minería a la inversa”.

Emanuel Molina Flórez

e investigador de Extensión Solidaria de la Universidad Nacional de Colombia desde el año 2021. Miembro del grupo de investigación Seminario de Estudios Espaciales. Sus líneas de investigación abarcan la arquitectura, la arqueología virtual y el diseño de mobiliario

Ricardo José Benavides Uribe

, constructor, magister en Construcción por la Universidad Nacional de Colombia, estudiante de doctorado en Planeación Urbana y Regional en Konya Technical University, Turquía. Investigador de Extensión Solidaria de la Universidad Nacional de Colombia, vinculado al Grupo de Investigación en Construcción de la misma institución. Actualmente enfocado en las líneas de investigación de construcción sostenible, gestión de la construcción y políticas públicas enfocadas en la sostenibilidad territorial.